Vuokrataan toimistotilat - Helsinki
Holkkitie 8B, Roihupelto, 00880 Helsinki #10733383
Suositulla Roihupellon yritys-/teollisuusalueella uudehko monitoimikiinteistö. Hyvä sijainti lähellä Itäväylää.
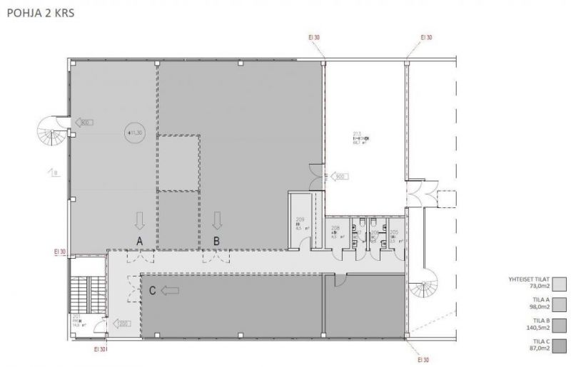
2.kerroksessa vapaana monikäyttöistä tilaa: 106, 120 ja 172 m2. Tilat voidaan yhdistää
Korkeaa ja edustavaa toimisto-näyttelytilaa lähellä mm. Lanternaa. Erinomaiset julkiset kulkuyhteydet. Pysäköintitilaa pihalla, ja kadulla.
Tiloissa koneellinen ilmanvaihto lämmöntalteenotolla ja jäähdytyksellä. Kustannustehokas tilaratkaisu.
Lisätiedot ja näyttö: mika.tilli@rhg.fi, 040 7013005
RHG Real Estate
Hämeenkatu 2 B20, 20500 Turku
Näytä puhelinnumero
020 734 4020
Mika Tilli
Näytä puhelinnumero
0407013005
