Vuokrataan toimistotilat - Helsinki
Holkkitie 8B, Roihupelto, 00880 Helsinki #10733381
Roihupellon suositulla yritys-/teollisuusalueella uuden veroinen monitoimikiinteistö. Hyvä sijainti lähellä Itäväylää.
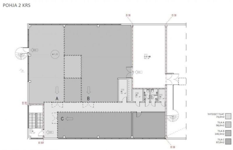
2.kerroksessa on vielä vapaana monikäyttöistä tilaa: 106, 120 ja 172 m2. Tilat voidaan tarvittaessa yhdistää.
Korkeaa ja edustavaa toimisto-näyttelytilaa hyvällä sijainnilla, lähellä monipuoliset palvelut, kuten Lanterna. Erinomaiset julkiset kulkuyhteydet. Pysäköintitilaa pihalla, ja kadulla.
Tiloissa koneellinen ilmanvaihto lämmöntalteenotolla ja jäähdytyksellä. Kustannustehokas tilaratkaisu.
Sovi näyttö mika.tilli@rhg.fi tai 040 7013005
RHG Real Estate
Hämeenkatu 2 B20, 20500 Turku
Näytä puhelinnumero
020 734 4020
Mika Tilli
Näytä puhelinnumero
0407013005
