Vuokrataan toimistotilat - Helsinki
Lautatarhankatu 6, Kalasatama, 00580 Helsinki #10733125
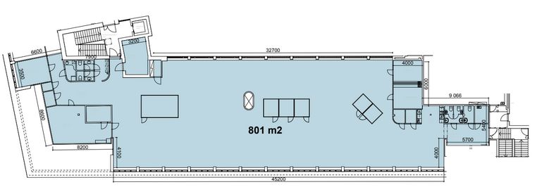
Vuokrattavana avara ylimmän kerroksen monitoimitila kaarevalla katolla ( 801 m2). Avotilan lisäksi tilassa on useampi pieni huone/ vetäytymistila.
Lindström Talo tarjoaa vuokralaisilleen kaikki tarvittavat palvelut- aulapalvelu, lounasravintola, pysäköintimahdollisuus, vuokrattavat neuvottelutilat.
Osoite
Lautatarhankatu 6, 00580 Helsinki
Tilatyyppi
Toimistotilaa
801 m2
Vapautuu
Kysy
Huoneiden lukumäärä
1
Energiatehokkuusluokka
Ei lain edellyttämää energiatodistusta
Ota yhteyttä
RHG Real Estate
Hämeenkatu 2 B20, 20500 Turku
Näytä puhelinnumero
020 734 4020
Heli Reinberg
Näytä puhelinnumero
040 647 4900
Pyydä lisätietoa
