Vuokrataan - Helsinki
Annankatu 34, Kamppi, 00100 Helsinki #10733010
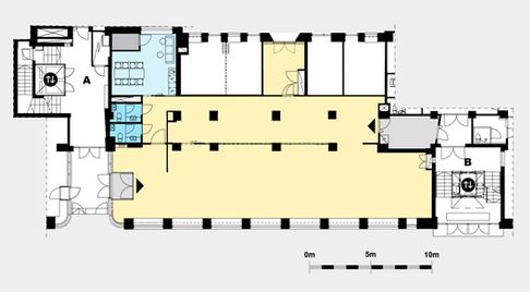
Vuokrattavana katutason liiketila ( 291 m2). Tilan ikkunat ja sisäänkäynt Annankadun puolella. Tila koostuu liiketilasta, taukotilasta ja sosiaalitiloista.
Kampin Huippu tarjoaa runsaasti lisäpalveluita ( vuokrattavia neuvottelutiloja, saunatilat). Niiden lisäksi keskusta-alueen palvelut ovat kävelyetäisyydellä.
Kysy lisää sp: heli.reinberg@rhg.fi.
Osoite
Annankatu 34, 00100 Helsinki
Vapautuu
Kysy
Huoneiden lukumäärä
1
Energiatehokkuusluokka
Ei lain edellyttämää energiatodistusta
Ota yhteyttä
RHG Real Estate
Hämeenkatu 2 B20, 20500 Turku
Näytä puhelinnumero
020 734 4020
Heli Reinberg
Näytä puhelinnumero
040 647 4900
Pyydä lisätietoa
