Vuokrataan toimistotilat - Helsinki
Elimäenkatu 17-19, Vallila, 00510 Helsinki #10732976
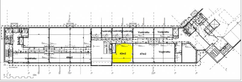
Vuokrattavana toimistohuone 43 m2 pientoimistokerroksesta. Yhteiset keittiö- ja sosiaalitilat.
Kiinteistössä aulapalvelu, vuokrattavia neuvottelutiloja, parkkipaikkoja autohallissa.
Osoite
Elimäenkatu 17-19, 00510 Helsinki
Tilatyyppi
Toimistotilaa
42 m2
Vapautuu
Kysy
Huoneiden lukumäärä
1
Ota yhteyttä
RHG Real Estate
Hämeenkatu 2 B20, 20500 Turku
Näytä puhelinnumero
020 734 4020
Heli Reinberg
Näytä puhelinnumero
040 647 4900
Pyydä lisätietoa
