Vuokrataan liiketilat - Helsinki
Fredrikinkatu 48, Keskusta, 00100 Helsinki #10732876
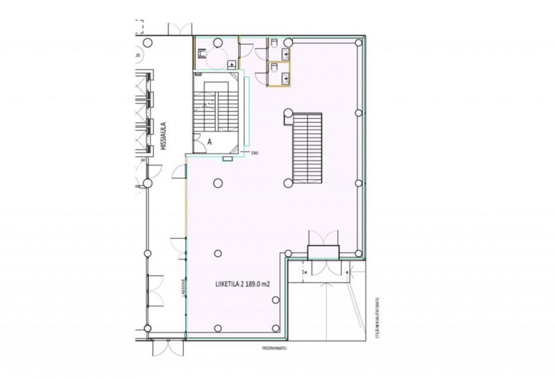
Vuokrataan Kampin kauppakeskuksen läheisyydessä sijaitsevassa kiinteistössä katutason 189m2 liiketila, joka soveltuu laadukkaalle kahvilalle/kevyen lounaan tarjoalle. Lämmityskeittiövalmiudet toteutettavissa, ei rasvakanavaa ja enintään 55 asiakaspaikkaa. Alakerrassa sisärappusin saavutettavissa noin 267,5 m²:n tila, joka voidaan vuokrata erikseen.
Kysy lisää Jouko Raitanen Helsinki puh. 0504695444
Osoite
Fredrikinkatu 48, 00100 Helsinki
Tilatyyppi
Liiketilaa
189 m2
Vapautuu
Kysy
Huoneiden lukumäärä
1
Ota yhteyttä
RHG Real Estate
Hämeenkatu 2 B20, 20500 Turku
Näytä puhelinnumero
020 734 4020
Jouko Raitanen
Näytä puhelinnumero
050 469 5444
Pyydä lisätietoa
