Vuokrataan toimistotilat - Helsinki
Karvaamokuja 2 A, Pitäjänmäki, 00380 Helsinki #10732853
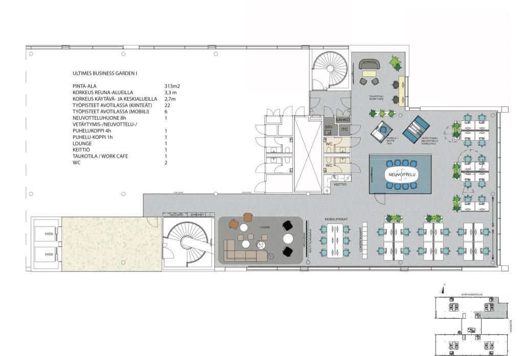
Vuokrataan kuudennen kerroksen 313m2 toimisto Ultimes Business Gardenista Pitäjänmäen näkyvimmillä paikalla Vihdintien alussa osoitteessa Karvaamokuja 2 a.
Ainutlaatuiseen Business Garden-konseptiin kuuluva tilojen helppo muunneltavuus mahdollistaa työtilojen järjestämisen kulloisenkin tarpeen mukaisesti olipa toiveena sitten monityötila tai perinteisempi tilaratkaisu.
Business Gardeneissa tilojen uudelleenjärjestelymahdollisuus on otettu huomioon jo suunnittelu- ja rakennusvaiheessa. Väliseinät siirtyvät helposti ja talotekniset muutokset hoidetaan automatiikan avulla, jotta vältytään mittavilta purku- ja rakennustöiltä muutostarpeen realisoituessa. Muuntojoustavat tilat säästävät operatiivisissa kuluissa ja tuhlaavat vähemmän luonnonvaroja.
Tilat joustavat myös yrityksen koon mukaan, eikä uusia tiloja tarvitse olla heti etsimässä yrityksen kasvaessa tai pienentyessä. Yrityksen pienentyessä Business Garden -toimitiloja voidaan helposti eriyttää tai alivuokrata. Vastaavasti yrityksen kasvaessa voidaan tiloja laajentaa tarpeen mukaan.
Jokaiseen Business Garden -toimitilaan kuuluvat kaikki peruspalvelut, ravintolapalvelut sekä ammattitaitoinen aulapalvelu. Business Gardenin kokouskeskuksessa voit valita erikokoisia, nykyaikaisella kokoustekniikalla varustettuja neuvottelutiloja.
Muut liiketoimintaanne tukevat palvelut toteutetaan aina tapaus- ja tarvekohtaisesti. Kohteista löytyy mm. autonvuokraus-, autopesula-, hieronta- ja muita hyvinvointipalveluita sekä Business Gardenin omat kaupunkipyörät. Autoille on toteutettu maanalaiset pysäköintihallit niin, että niistä on suora yhteys kerroksiin ja työmatkapyöräilijöille on omat polkupyöräparkit sosiaalitiloineen. Sinä päätät, mitä palveluita haluat käyttää ja maksat vain palveluista, joita käytät.
Kysy lisää Jouko Raitanen Helsinki puh. 0504695444
RHG Real Estate
Hämeenkatu 2 B20, 20500 Turku
Näytä puhelinnumero
020 734 4020
Jouko Raitanen
Näytä puhelinnumero
050 469 5444
