Vuokrataan toimistotilat - Helsinki
Valimotie 10, Pitäjänmäki, 00380 Helsinki #10732782
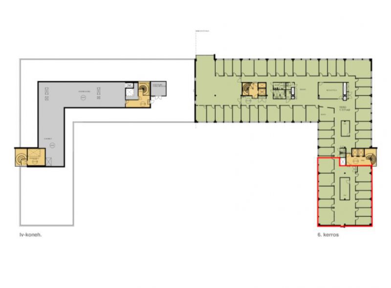
Vuokrataan 248m2 viihtyisää toimistotilaa kuudennessa kerroksessa. Tarvittaessa remontit ja tilamuutokset toteutetaan vuokralaisen toiveiden mukaisesti. Vuokrattavissa myös koko kerros, joka jatkuu Hiomotie 3:n puolelle (3. ja 4.) 2978 m2 ja 2341 m2.
Vuokralaisia palvelee Valimotie 13 A:ssa sijaitseva aulapalvelu, josta hoituu myös postien vastaanotto, edelleenlähetys sekä pakettipalvelut. Katutasossa runsaan lounaan arkipäivisin tarjoilee Ravintola Factory. Valimotie 10 rakennuksessa sijaitsevat olympiakaupunkien mukaan nimetyt neuvottelutilat: Calgary, Montreal, Nagano, Peking, Salt Lake, Soul ja Tokio
Kysy lisää Jouko Raitanen Helsinki puh. 0504695444
RHG Real Estate
Hämeenkatu 2 B20, 20500 Turku
Näytä puhelinnumero
020 734 4020
Jouko Raitanen
Näytä puhelinnumero
050 469 5444
