Vuokrataan toimistotilat - Helsinki
Valimotie 10, Pitäjänmäki, 00380 Helsinki #10732780
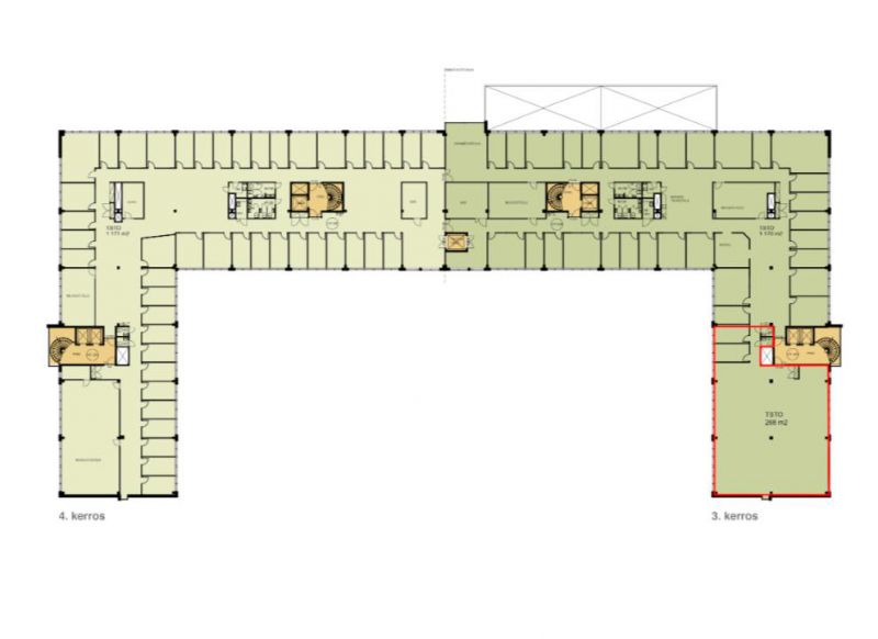
Vuokrataan kolmannen kerroksen 268m2 toimistotilaa.Tila on mahdollista jakaa esimerkiksi osittain kiinteillä lasiseinillä, jotka tarvittaessa saa avattua sulauttaen tilat yhteen. Tarvittavat remontit ja tilamuutokset suunnitellaan vuokralaisen tarpeiden mukaisesti.
Vuokralaisia palvelee Valimotie 13 A:ssa sijaitseva aulapalvelu, josta hoituu myös postien vastaanotto, edelleenlähetys sekä pakettipalvelut. Katutasossa runsaan lounaan arkipäivisin tarjoilee Ravintola Factory. Valimotie 10 rakennuksessa sijaitsevat olympiakaupunkien mukaan nimetyt neuvottelutilat: Calgary, Montreal, Nagano, Peking, Salt Lake, Soul ja Tokio
Kysy lisää Jouko Raitanen Helsinki puh. 0504695444
RHG Real Estate
Hämeenkatu 2 B20, 20500 Turku
Näytä puhelinnumero
020 734 4020
Jouko Raitanen
Näytä puhelinnumero
050 469 5444
