Vuokrataan toimistotilat - Helsinki
Pohjoinen Rautatiekatu 25, Kamppi, 00100 Helsinki #10732769
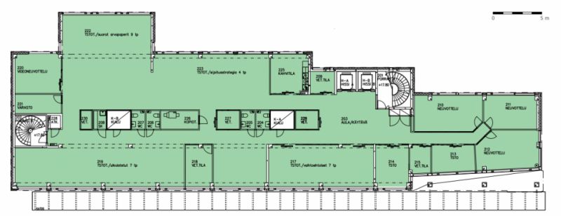
Vuokrattavana 2.kerroksen toimistotila ( 616 m2) Helsingin keskustasta. Keskeisellä paikalla sijaitseva toimistokiinteistö on peruskorjattu vuosina 2016-2017. Seitsemänkerroksisen talon pohjakerroksessa on tilava pyöräkellari pukuhuoneineen ja varastotilaa sekä pysäköintihalli 15 autolle. Ensimmäisen kerroksen neuvottelu- ja kokoustilat ovat kaikkien vuokralaisten yhteiskäytössä.
Osoite
Pohjoinen Rautatiekatu 25, 00100 Helsinki
Tilatyyppi
Toimistotilaa
616 m2
Vapautuu
Kysy
Huoneiden lukumäärä
1
Ota yhteyttä
RHG Real Estate
Hämeenkatu 2 B20, 20500 Turku
Näytä puhelinnumero
020 734 4020
Heli Reinberg
Näytä puhelinnumero
040 647 4900
Pyydä lisätietoa
