Vuokrataan toimistotilat - Tampere
Eteläpuisto 2C, 33200 Tampere #10732762
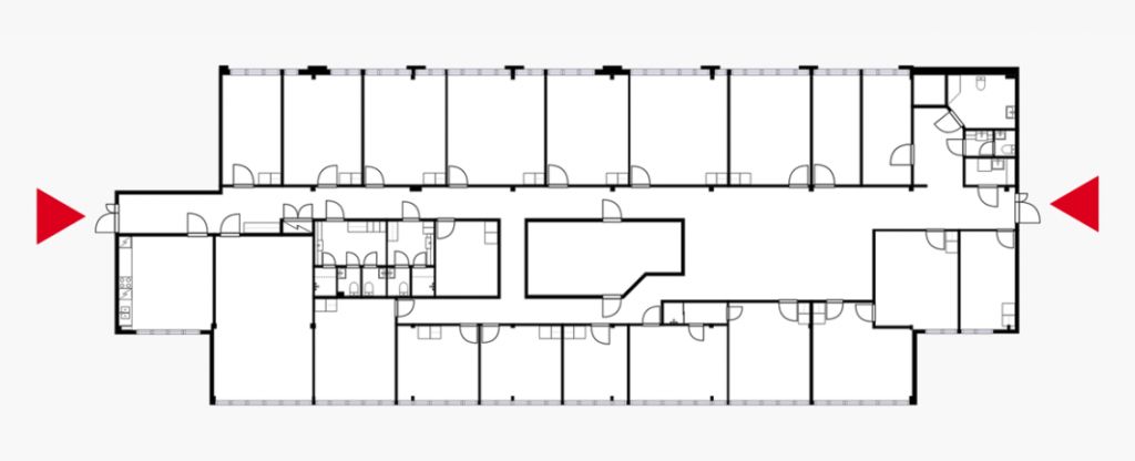
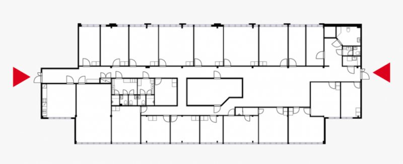
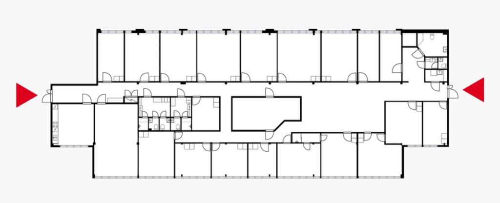
Tampereen Eteläpuistossa historiallisessa Kligendahlin rakennuksessa vapaana 5. kerroksen juuri remontoitu toimistokokonaisuus. Huoneet ovat avaria ja valoisia, lounasravintola löytyy samasta kiinteistöstä ja liikenneyhteydet ovat hyvät.
Parkkipaikkoja saatavilla omasta pihasta ja viereisiltä kaduilta kaupungin pysäköintiluvalla.
Lisätiedot: 045 610 2752 tai mikko.wallgren@rhg.fi
Lisää toimitiloja: www.rhg.fi
Osoite
Eteläpuisto 2C, 33200 Tampere
Tilatyyppi
Toimistotilaa
591 m2
Vapautuu
Kysy
Huoneiden lukumäärä
1
Ota yhteyttä
RHG Real Estate
Hämeenkatu 2 B20, 20500 Turku
Näytä puhelinnumero
020 734 4020
Mikko Wallgren
Näytä puhelinnumero
045 6102 752
Pyydä lisätietoa
