Vuokrataan toimistotilat - Helsinki
Arkadiankatu 23, 00101 Helsinki #10732669
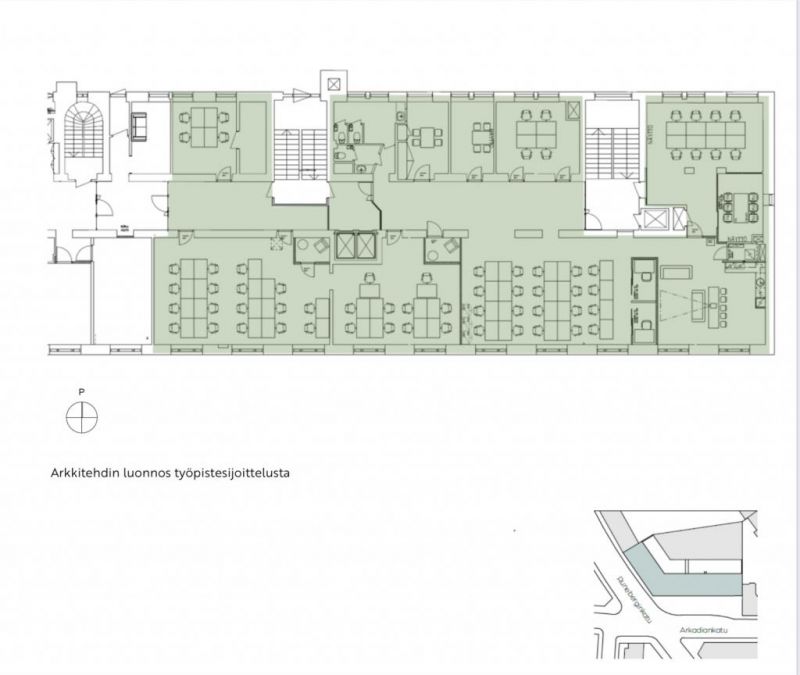
Vuokrataan 3. kerroksen valoisa 486m2 toimisto, joka tarjoaa työpisteen noin 40 - 50 henkilölle. Tilassa tiimitiloja ja pienempiä ryhmähuoneita. Erillisiä puhelinhuoneita sekä tilava taukotila. Arkadiankatu 23 kiinteistössä on tehty kattavat remontit 2015-2018, jonka yhteydessä toimistotilat on modernisoitu nykypäivän vaatimustasoon.
Alakerran kahvilan ja ravintolan lisäksi talon piha- siivessä on jopa 120 hengen seminaaritila ja talon ylemmissä kerroksissa on 40 hengen auditorio sekä 30 ja 10 hengen kokoustilat. Sisäpihan puolella toimii Elixia Töölö, jolla on viihtyisät n. 1 100 neliön tilat kahdessa
Kahvila-, ravintola- ja kokouspalvelut tarjoaa Antell. Kuntosali- ja ryhmäliikuntapalvelut tarjoaa Elixia. Erinomaiset julkiset kulkuyhteydet. Aimo Park pysäköinti kiinteistön yhteydessä, pysäköintipaikkoja hallissa ja pihalla.
Kysy lisää Jouko Raitanen Helsinki puh. 0504695444
RHG Real Estate
Hämeenkatu 2 B20, 20500 Turku
Näytä puhelinnumero
020 734 4020
Jouko Raitanen
Näytä puhelinnumero
050 469 5444
