Vuokrataan toimistotilat - Helsinki
Kluuvikatu 5, 00100 Helsinki #10732668
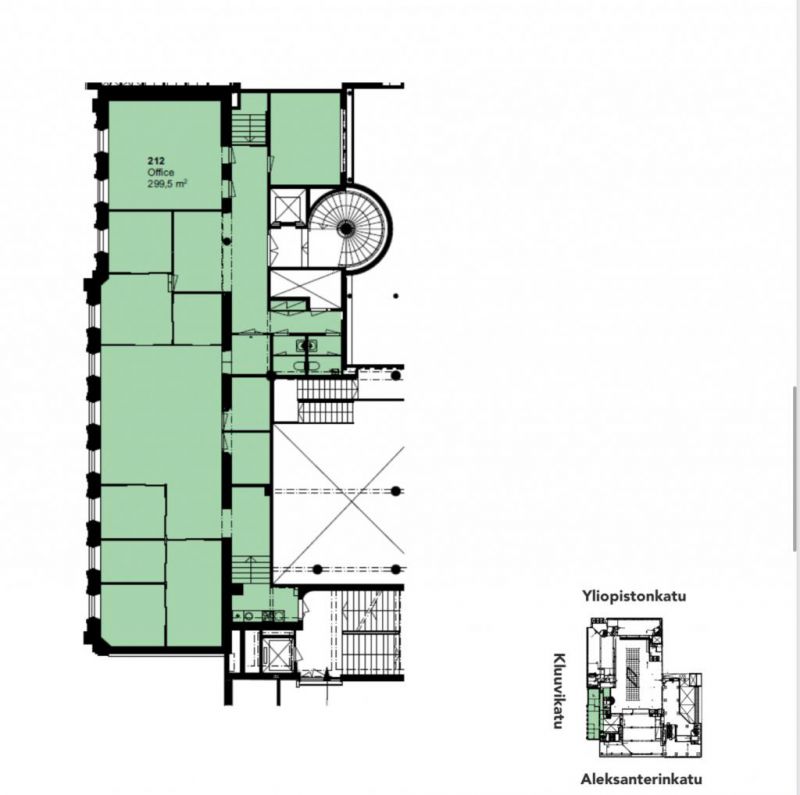
Vuokrataan 1800 -luvun lopun historiallisen rakennuksen 3. kerroksen 299,5m2 toimistotila, joka tarjoaa edustavan ja toimivan tilakokonaisuuden. Julkisivun kauneus korostuu juuri asennetuin kohdevalaisin. Toimiston sisäänkäynti kadulta osoitteesta Kluuvikatu 5.
Tila on optimaali noin 15-25 henkilön organisaatiolle. Tilassa on edustava sisääntuloaula ja iso neuvottelutila, pienehköjä huoneita lasiseinin ja avotilaa sekä taukokeittiö.
KLUUVIssa on useita ravintoloita ja kahviloita sekä erikoisliikkeitä rakennuksen alemmissa kerroksissa. Talossa hissiyhteyden päässä sijaitsevat Kluuvin pysäköintihallit. Käyttäjille on myös tarjolla suihkutilat pukukaappeineen sekä pyörien säilytystilaa. Talossa toimii myös Meeting Park KLUUVI, joka tarjoaa monipuoliset neuvottelumaailman faciliteetit. Erinomaiset julkiset kulkuyhteydet.
Pysäköintihalliin pääsee kuivin jaloin hissiyhteydellä Aimo Park Kluuviin.
Kysy lisää Jouko Raitanen Helsinki puh. 0504695444
RHG Real Estate
Hämeenkatu 2 B20, 20500 Turku
Näytä puhelinnumero
020 734 4020
Jouko Raitanen
Näytä puhelinnumero
050 469 5444
