Vuokrataan tuotantotilat - Helsinki
Hiomotie 3, Pitäjänmäki, 00380 Helsinki #10732439
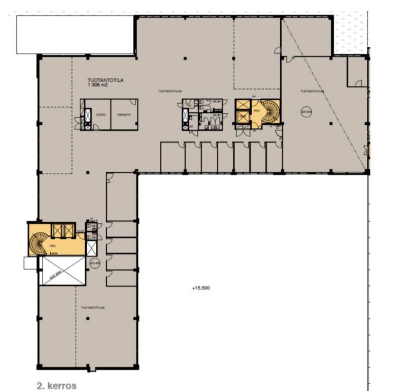
Vuokrataan 1305m2 tuotantotila rakennuksen toisessa kerroksessa. Tilaan toteutetaan tarvittaessa remontit ja tilamuutokset vuokralaisen toiveiden mukaisesti.
Vuokralaisia palvelee Valimotie 13 A:ssa sijaitseva aulapalvelu, josta hoituu myös postien vastaanotto, edelleenlähetys sekä pakettipalvelut. Rakennuksesta löytyy myös pieni kuntosali sekä päivittäin lämpeävä sauna, josta aloitat työpäiväsi reippaasti. Katutasossa runsaan lounaan arkipäivisin tarjoilee Ravintola Factory.
Keskeinen sijainti pääkaupunkiseudulla. Juna
, Jokerilinja/pikaratikka sekä Bussiyhteydet talon vieressä. Hiomotie 3 sijaitsee noin 250 metrin päässä Valimon asemasta. Keskustaan ja lentokentälle alle 20 minuutin ajomatka.
Kysy lisää Jouko Raitanen Helsinki puh. 0504695444
RHG Real Estate
Hämeenkatu 2 B20, 20500 Turku
Näytä puhelinnumero
020 734 4020
Jouko Raitanen
Näytä puhelinnumero
050 469 5444
