Vuokrataan toimistotilat - Helsinki
Itälahdenkatu 23, 00210 Helsinki #10732381
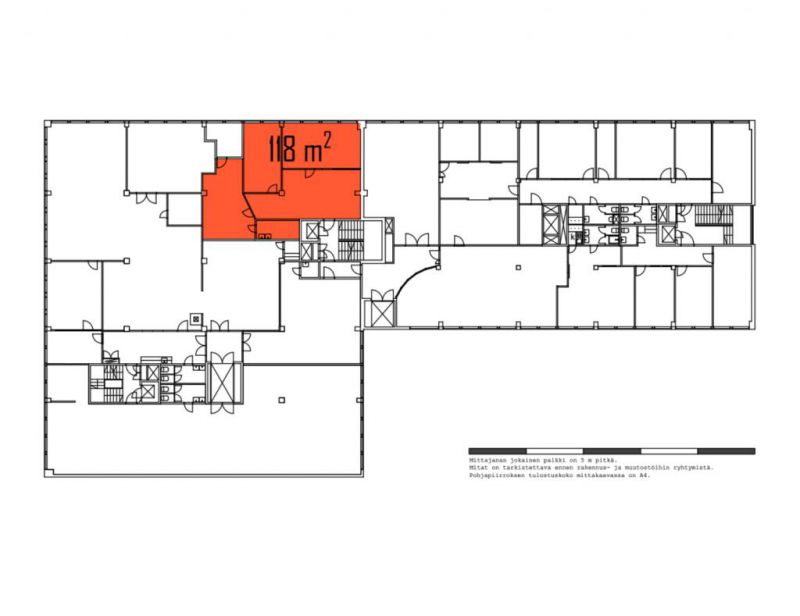
Vuokrataan kolmannen kerroksen 118m2 monipuolinen toimistotila, jossa lisäksi pieni varastotila. Iso aula ja kaksi erillistä toimistohuonetta. Omat wc:t.
Kysy lisää Jouko Raitanen Helsinki puh. 0504695444
Osoite
Itälahdenkatu 23, 00210 Helsinki
Tilatyyppi
Toimistotilaa
118 m2
Vapautuu
Kysy
Huoneiden lukumäärä
1
Ota yhteyttä
RHG Real Estate
Hämeenkatu 2 B20, 20500 Turku
Näytä puhelinnumero
020 734 4020
Jouko Raitanen
Näytä puhelinnumero
050 469 5444
Pyydä lisätietoa
