Vuokrataan toimistotilat - Helsinki
Urho Kekkosen Katu 3-7, 00100 Helsinki #10732379
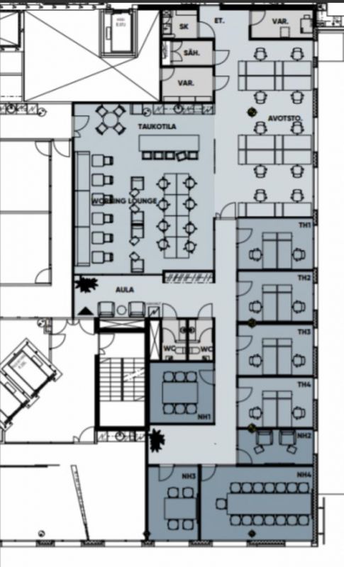
Vuokrataan näyttävä korkeatasoinen 336 m² toimisto Kampin sydämessä. Tila sijaitsee neljännessä kerroksessa.
Kampintorni on osa Kampin kauppakeskuksen yhteydessä sijaitsevaa toimistorakennuskokonaisuutta. Trigora on rakennettu 2005, toimistotilaa kolmessa tornissa yhteensä 12 000 m2 ja sen on suunnitellut Pekka Helin. Torneista on suora yhteys kauppakeskukseen joten kattavat palvelut, ravintolamaailma, kaupat, julkiset kulkuvälineet ja parkkihallit välittömässä läheisyydessä.
Kysy lisää Jouko Raitanen Helsinki puh. 0504695444
RHG Real Estate
Hämeenkatu 2 B20, 20500 Turku
Näytä puhelinnumero
020 734 4020
Jouko Raitanen
Näytä puhelinnumero
050 469 5444
