Vuokrataan - Helsinki
Teollisuuskatu 33, Vallila, 00510 Helsinki #10732341
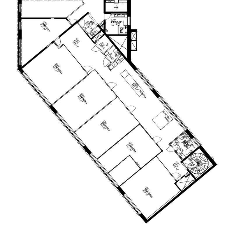
Vuokrattavana 3.kerroksen toimisto 310 m2. Tila koostuu viidestä huoneesta, keittiöstä ja sosiaalitiloista. Mahdollisuus vuokrata myös osa tilasta. Siinä tapauksessa keittiö ja sosiaalitilat jäävät yhteiskäyttöön.
Syksyllä 2017 peruskorjattu Vallilla 33 Business Park on täyden palvelun toimistotalo, jossa näkyy laatu, modernit ratkaisut ja toimivuus.
Vuokralaisten käytössä on aulapalvelu, lounasravintola, eri kokoisia ja tyylisiä neuvottelutiloja, pyöräparkki ja autohalli. Kuntosalin ja saunan käyttö kuuluu vuokraan.
RHG Real Estate
Hämeenkatu 2 B20, 20500 Turku
Näytä puhelinnumero
020 734 4020
Heli Reinberg
Näytä puhelinnumero
040 647 4900
