Vuokrataan - Helsinki
Ruoholahdenkatu 8, Kamppi, 00180 Helsinki #10732288
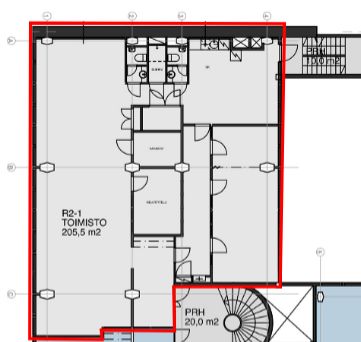
Vuokrattavana toimistotila( 205 m2). Toimisto sijaitsee 2.kerroksessa ja avotilan lisäksi siinä on yksi isompi huone sekä muutamia pienempiä huoneita/ hiljaisen työskentelyn tiloja.
Rakennuksessa on koneellinen ilmanvaihto ja jäähdytys.
Kiinteistö sijatsee hyvien kulkuyhteyksien varrella kävelymatkan päässä Kampin metroasemalta.
Kysy lisää sp: heli.reinberg@rhg.fi.
Osoite
Ruoholahdenkatu 8, 00180 Helsinki
Vapautuu
Kysy
Huoneiden lukumäärä
1
Energiatehokkuusluokka
Ei lain edellyttämää energiatodistusta
Ota yhteyttä
RHG Real Estate
Hämeenkatu 2 B20, 20500 Turku
Heli Reinberg
Näytä puhelinnumero
040 647 4900
Pyydä lisätietoa
