Vuokrataan toimistotilat - Espoo
Finnoonniitty 7, Suomenoja, 02270 Espoo #10732177
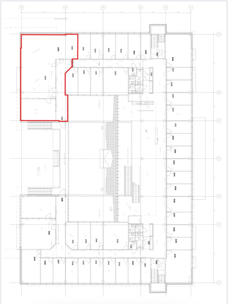
Vuokrataan viihtyisää 156m2 toimistotila näyttävän toimitilarakennuksen 2. kerroksessa. Tyylikkäät yhteiset tilat kuten aula katutasossa sekä keittiö ja neuvottelutilat.
1990-luvulla rakennettu kiinteistökokonaisuus sijaitsee Suomenojan kehittyvällä alueella noin kilometrin päässä tulevalta Finnoon metroasemalta Espoon keskustaan päin. Saavutettavuus Länsiväylän kainalossa on loistava. Arkkitehtuurisesti vaikuttava kiinteistö on rakennettu IT-yrityksen pääkonttoriksi.
Kysy lisää Jouko Raitanen puh. 0504695444
RHG Real Estate
Hämeenkatu 2 B20, 20500 Turku
Näytä puhelinnumero
020 734 4020
Jouko Raitanen
Näytä puhelinnumero
050 469 5444
