Vuokrataan toimistotilat - Helsinki
Panimokatu 4, Kalasatama, 00580 Helsinki #10732118
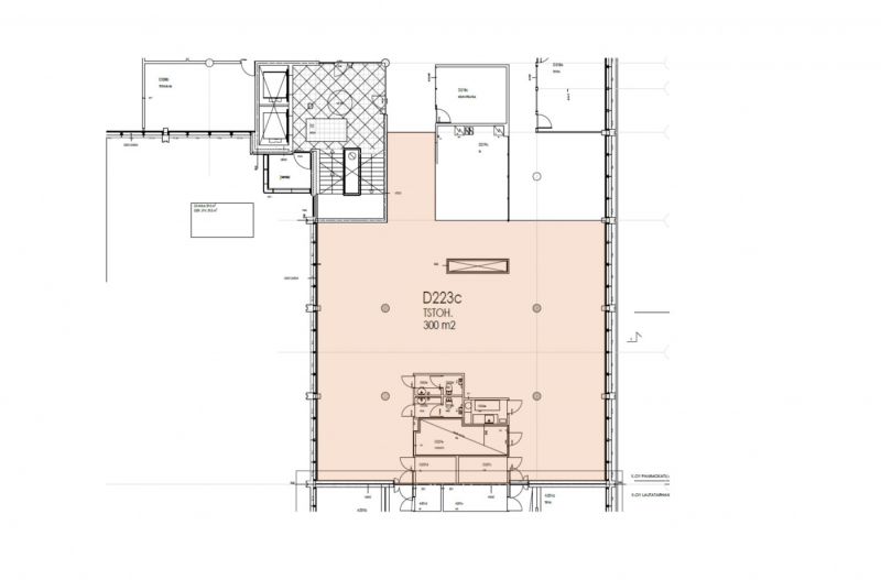
Tehokasta, remontoitua toimistotilaa edustavassa Troolissa! Avotila 294 m² (+ aulajyvitys 11 m²), jossa ikkunat itään kadulle ja länteen sisäpihalle.
Kysy lisää Jouko Raitanen Helsinki puh. 0504695444
Osoite
Panimokatu 4, 00580 Helsinki
Tilatyyppi
Toimistotilaa
305 m2
Vapautuu
Kysy
Huoneiden lukumäärä
1
Ota yhteyttä
RHG Real Estate
Hämeenkatu 2 B20, 20500 Turku
Näytä puhelinnumero
020 734 4020
Jouko Raitanen
Näytä puhelinnumero
050 469 5444
Pyydä lisätietoa
