Vuokrataan - Espoo
Hevosenkenkä 3, Leppävaara, 02600 Espoo #10732095
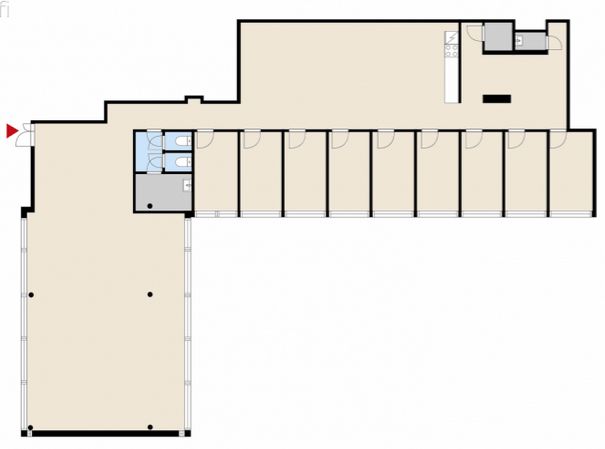
Vuokrattavana kombitoimisto ( 394 m2) tyylikkään Panorama Towerin 6.kerroksesta.
Tila muokataan käyttäjän tarpeiden mukaiseksi.
Panorama Tower tarjoa vuokralaisille kaikki tarvittavat palvelut ml aulapalvelu, vuokrattavat neuvottelutilat, edustussaunat ym. Parkkipaikkoja löytyy kiinteistöön kuuluvasta Selloparkista. Kauppakeskus Sellon palvelut ovat kivenheiton päässä.
Kiinteistö sijaitsee erinomaisten kulkuyhteyksien varrella Kehä I ja Turuntien läheisyydessä. Leppävaaran juna-asema ja bussiterminaali ovat ihan vieressä. Autopaikkoja löytyy kiinteistöön kuuluvasta Sello-parkista.
RHG Real Estate
Hämeenkatu 2 B20, 20500 Turku
Näytä puhelinnumero
020 734 4020
Heli Reinberg
Näytä puhelinnumero
040 647 4900
