Vuokrataan toimistotilat, tuotantotilat, varastotilat - Raisio
Purokatu 2, 21200 Raisio #10732093
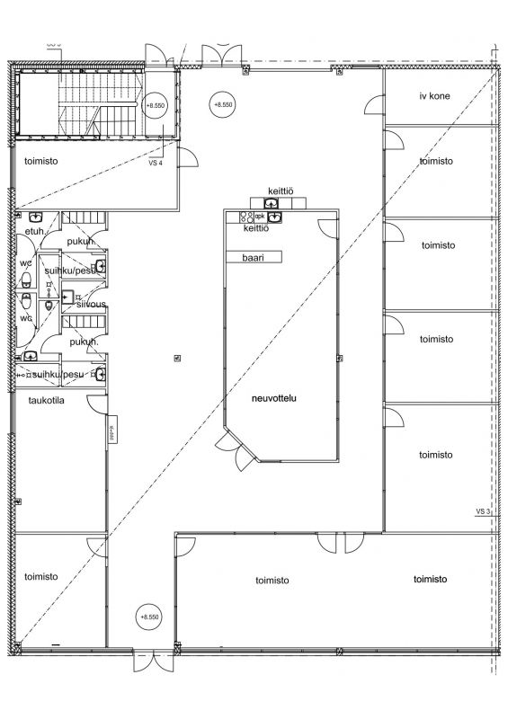
Vuokrattavana katutason n. 347m2 siisti toimisto- kevyt tuotantotila, osoitteessa Purokatu 3, Raisio. Edustava jäähdytetty tila, jossa mm. graniittilattia. Pihanpuolella isompi taitto-oven (3mx3m) lisäksi leveä käyntiovi, lisäksi käynti myös Purokadun puolelta. Avotilan lisäksi muutama toimistohuone , keittiö , soc.tilat sekä inva-vessa.
Tilassa viimeksi toiminut Paimion kaupungin vammaispalveluiden päiväkeskus
Pohjakuvassa tila nro 11.
Vuokrapyyntö 3 261,80 euroa/kk ( 9,4e/m2) +.hoitovastike 544,79 euroa/kk (1,57 e/m2) + alv.
Hoitovastikkeeseen sisältyy seuraavat kulut: vesi, lämpö, sähkö, yleisten tilojen siivous, jätehuolto, pihatyöt, kiinteistönhoito. Hoitovastike laskutetaan ennakkona ja tasauslaskut tehdään 6kk:n välein mittausten mukaan.
Heti vapaa.
Lisää toimitiloja www.rhg.fi
RHG Real Estate
Hämeenkatu 2 B20, 20500 Turku
Näytä puhelinnumero
020 734 4020
Tony Rosenblad
Hallituksen puheenjohtaja
Näytä puhelinnumero
+358 50 551 5375
