Vuokrataan toimistotilat - Helsinki
Siltasaarenkatu 12, Hakaniemi, 00530 Helsinki #10731874
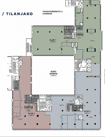
Vuokrattavana 6.kerroksen toimistotila ( 560 m2) erinomaisten kulkuyhteyksein varrelta. Tila remontoidaan vuokralaisen tarpeiden mukaan.
Osoite
Siltasaarenkatu 12, 00530 Helsinki
Tilatyyppi
Toimistotilaa
560 m2
Vapautuu
Kysy
Huoneiden lukumäärä
1
Ota yhteyttä
RHG Real Estate
Hämeenkatu 2 B20, 20500 Turku
Näytä puhelinnumero
020 734 4020
Heli Reinberg
Näytä puhelinnumero
040 647 4900
Pyydä lisätietoa
