Vuokrataan toimistotilat - Helsinki
Itälahdenkatu 23, Lauttasaari, 00210 Helsinki #10731834
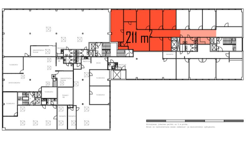
Toimistotila 211 m² vuokrattavana toimistokiinteistön ylimmästä viidennestä kerroksesta, jonne pääsee henkilöhissillä. Tila koostuu omasta tilasta (kuusi erillistä toimistohuonetta ja neuvotteluhuone) ja 40 m²:sta yhteistä tilaa (keittiö, wc ym.).
Osoite
Itälahdenkatu 23, 00210 Helsinki
Tilatyyppi
Toimistotilaa
211 m2
Vapautuu
Kysy
Huoneiden lukumäärä
1
Ota yhteyttä
RHG Real Estate
Hämeenkatu 2 B20, 20500 Turku
Näytä puhelinnumero
020 734 4020
Jouko Raitanen
Näytä puhelinnumero
050 469 5444
Pyydä lisätietoa
