Vuokrataan - Helsinki
Porkkalankatu 7, Ruoholahti, 00180 Helsinki #10731746
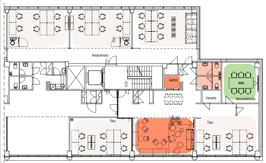
Salmisaaren Liiketalosta vuokrattavana tehokas 2.kerroksen toimisto (310 m2).
Kohde sijaitsee vastapäätä Ruoholahden kauppakeskusta, mihin pääsee myös parkkihallin kautta.
Hyvät julkiset liikenneyhteydet. Ruoholahden metroasema on kävelymatkan päässä.
Autopaikkoja vuokrattavana sekä kiinteistön pysäköintihallista, että kauppakeskuksen parkkihallist
Osoite
Porkkalankatu 7, 00180 Helsinki
Vapautuu
Kysy
Huoneiden lukumäärä
1
Energiatehokkuusluokka
Ei lain edellyttämää energiatodistusta
Ota yhteyttä
RHG Real Estate
Hämeenkatu 2 B20, 20500 Turku
Heli Reinberg
Näytä puhelinnumero
040 647 4900
Pyydä lisätietoa
