Vuokrataan toimistotilat - Helsinki
Itälahdenkatu 23, Lauttasaari, 00210 Helsinki #10731614
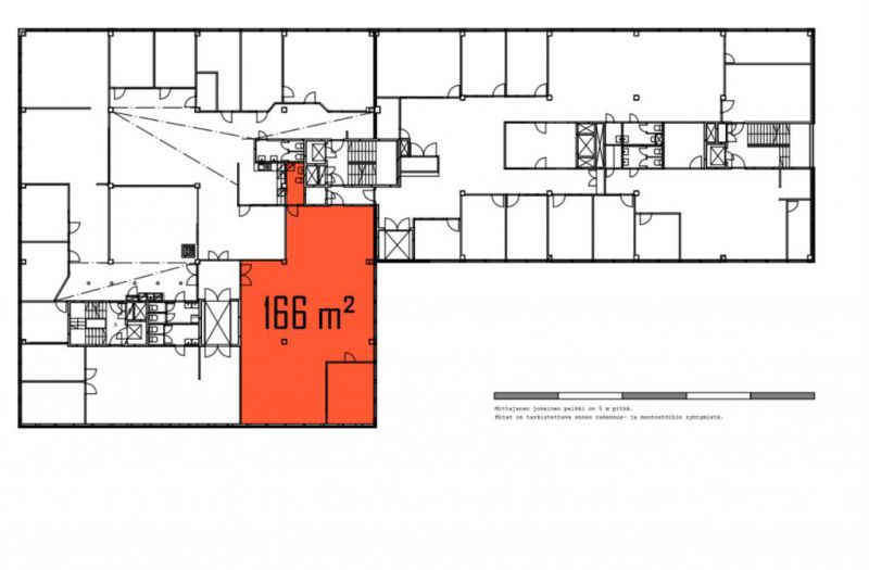
Lauttasaaressa neljännen kerroksen 166m2 toimistotila, joka sopii näyttelytilaksi tai avotoimistotilaksi. Tilassa on myös erillinen huone vaikka neuvottelutilaksi. Sisään voi käydä suoraan lastauslaiturilta isolla tavarahissillä, joten tila toimii tarvittaessa hyvin myös varastotilana.
Osoite
Itälahdenkatu 23, 00210 Helsinki
Tilatyyppi
Toimistotilaa
166 m2
Vapautuu
Kysy
Huoneiden lukumäärä
1
Ota yhteyttä
RHG Real Estate
Hämeenkatu 2 B20, 20500 Turku
Näytä puhelinnumero
020 734 4020
Jouko Raitanen
Näytä puhelinnumero
050 469 5444
Pyydä lisätietoa
