Vuokrataan liiketilat - Raisio
Lukkarlantie 2, 21280 Raisio #10731611
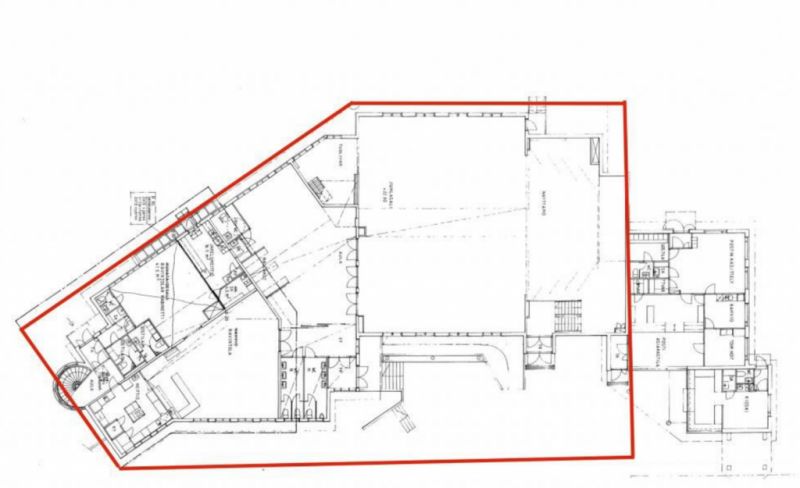
Vuokrattavana Huhko-talossa noin 426 m2 tila, joka on aikaisemmin toiminut juhlasalina, osoitteessa Lukkarlantie 2, Raisio. Tilat soveltuvat erinomaisesti sellaisenaan juhlatilaksi, teatteriksi, kokoontumis- tilaksi tai esim. liikuntasaliksi.
Tilakokonaisuus jossa noin 76m2 eteistilan lisäksi noin 350m2 juhlasali jonka korkeus on 5,90 metriä.
Mahdollisuus myös vuokrata samassa rakennuksessa oleva n 130 m2 lounasravintolatilat. Rakennuksen alakerrassa vielä erikseen vuokrattavana noin 75 m2 neuvottelu- ja saunatilat.
Heti vapaana
RHG Real Estate
Hämeenkatu 2 B20, 20500 Turku
Näytä puhelinnumero
020 734 4020
Tony Rosenblad
Hallituksen puheenjohtaja
Näytä puhelinnumero
+358 50 551 5375
