Vuokrataan toimistotilat - Helsinki
Valimotie 17-19, Pitäjänmäki, 00380 Helsinki #10731439
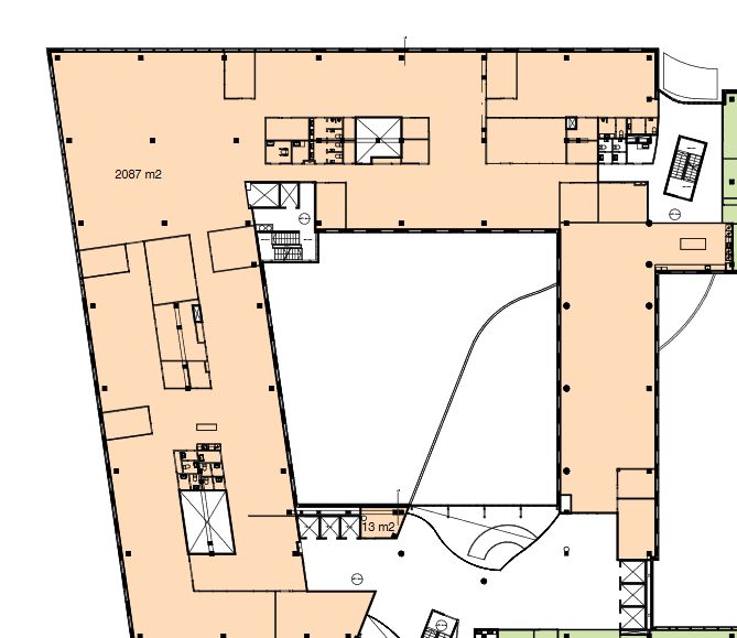
Vuokrattavana 4.kerroksen toimisto 2087 m2. Tila räätälöidään vuokralaisen tarpeiden mukaan.
Kiinteistö Oy Valimotie 17−19 tarjoaa nykyaikaiset toimistotilat ja tehokkaat tilaratkaisut. Rakennus on valmistunut vuonna 1993.
Rakennuksessa on saatavilla monipuolisia palveluja; henkilöstöravintola, aulapalvelut ja auditorio. Kiinteistössä on lisäksi kuntosali ja uima-allas, edustustilat, sauna sekä takkahuone.
Valimotie 17–19 sijaitsee hyvien liikenneyhteyksien ja palveluiden läheisyydessä. Pihatasolla ja autohallissa on runsaasti pysäköintipaikkoja vuokralaisten käyttöön.
RHG Real Estate
Hämeenkatu 2 B20, 20500 Turku
Näytä puhelinnumero
020 734 4020
Heli Reinberg
Näytä puhelinnumero
040 647 4900
