Vuokrataan toimistotilat - Espoo
Sinikalliontie 12, Mankkaa, 02630 Espoo #10731438
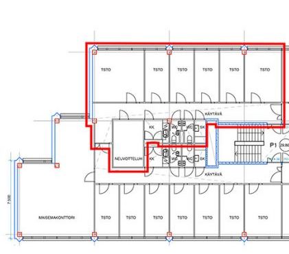
Vuokrattavana 3.kerroksen huonetoimisto ( 145 m2) Turun väylän tuntumasta Espoon Mankkaassa.
Toimistotilat ovat helposti muunneltavissa käyttäjien tarpeisiin sopiviksi. Rakennuksessa on koneellinen ilmanvaihto.
Vuokralaisten käytössä on neuvottelutilat ja saunaosasto.
Osoite
Sinikalliontie 12, 02630 Espoo
Tilatyyppi
Toimistotilaa
145 m2
Vapautuu
Kysy
Huoneiden lukumäärä
1
Energiatehokkuusluokka
Ei lain edellyttämää energiatodistusta
Ota yhteyttä
RHG Real Estate
Hämeenkatu 2 B20, 20500 Turku
Näytä puhelinnumero
020 734 4020
Heli Reinberg
Näytä puhelinnumero
040 647 4900
Pyydä lisätietoa
