Vuokrataan toimistotilat - Espoo
Karaportti 5, Karamalmi, 02610 Espoo #10731332
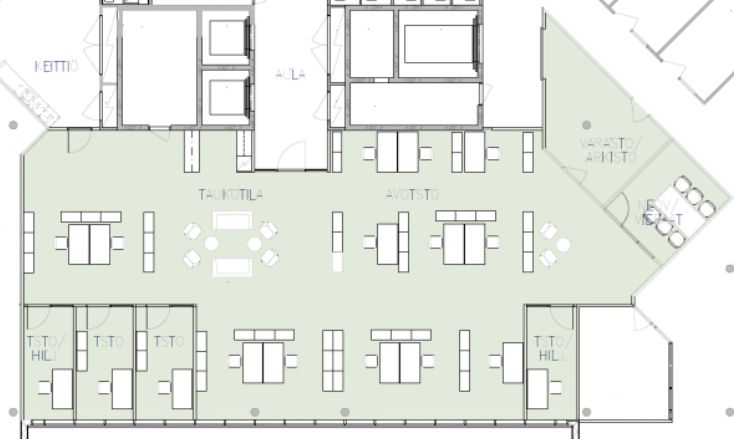
Vuokrattavana 4. kerroksen toimistotila ( 293 m2). Nykyhetkellä avotila ja yksi huone. Tilat modernisoidaan ja tiloihin tulee tyylikkäät keittiö ja neuvottelutilat yhteiseen käyttöön. Vuokraan kuuluu sähkö ja internet. Kohteessa on aulapalvelu ja edustusaunat.
Osoite
Karaportti 5, 02610 Espoo
Tilatyyppi
Toimistotilaa
293 m2
Vapautuu
Kysy
Huoneiden lukumäärä
1
Energiatehokkuusluokka
Ei lain edellyttämää energiatodistusta
Ota yhteyttä
RHG Real Estate
Hämeenkatu 2 B20, 20500 Turku
Näytä puhelinnumero
020 734 4020
Heli Reinberg
Näytä puhelinnumero
040 647 4900
Pyydä lisätietoa
