Vuokrataan toimistotilat - Helsinki
Valimotie 13 B, Pitäjänmäki, 00380 Helsinki #10731298
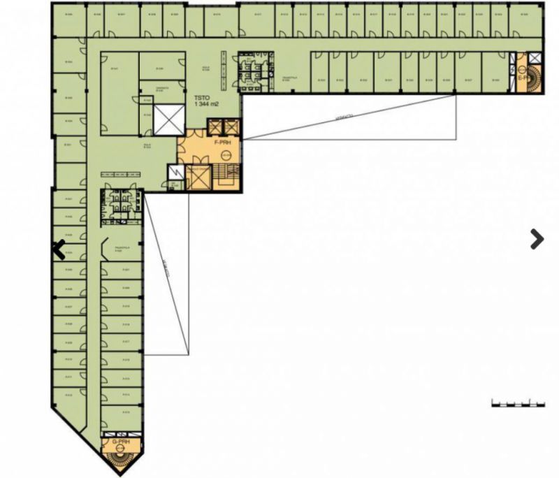
Vuokrataan toimistotila, joka käsittää koko rakennuksen viidennen kerroksen. Tila sisältää sekä yksittäisiä toimistohuoneita että runsaasti avointa tilaa. Tilaan toteutetaan tarvittaessa remontit ja tilamuutokset vuokralaisen toiveiden mukaisesti. Mahdollista vuokrata myös osa kerroksesta, esimerkiksi jakamalla tila kahteen eri siipeen.
Rappukäytävässä henkilöhissin lisäksi myös tilava tavarahissi.
Vuokralaisia palvelee Valimotie 13 A:ssa sijaitseva aulapalvelu, josta hoituu myös postien vastaanotto, edelleenlähetys sekä pakettipalvelut. Katutasossa runsaan lounaan arkipäivisin tarjoilee Ravintola Factory. Valimotie 10 rakennuksessa sijaitsevat olympiakaupunkien mukaan nimetyt neuvottelutilat: Calgary, Montreal, Nagano, Peking, Salt Lake, Soul ja Tokio
Kysy lisää Jouko Raitanen Helsinki puh. 0504695444
RHG Real Estate
Hämeenkatu 2 B20, 20500 Turku
Näytä puhelinnumero
020 734 4020
Jouko Raitanen
Näytä puhelinnumero
050 469 5444
