Vuokrataan toimistotilat - Helsinki
Ristipellontie 16, Konala, 00390 Helsinki #10731253
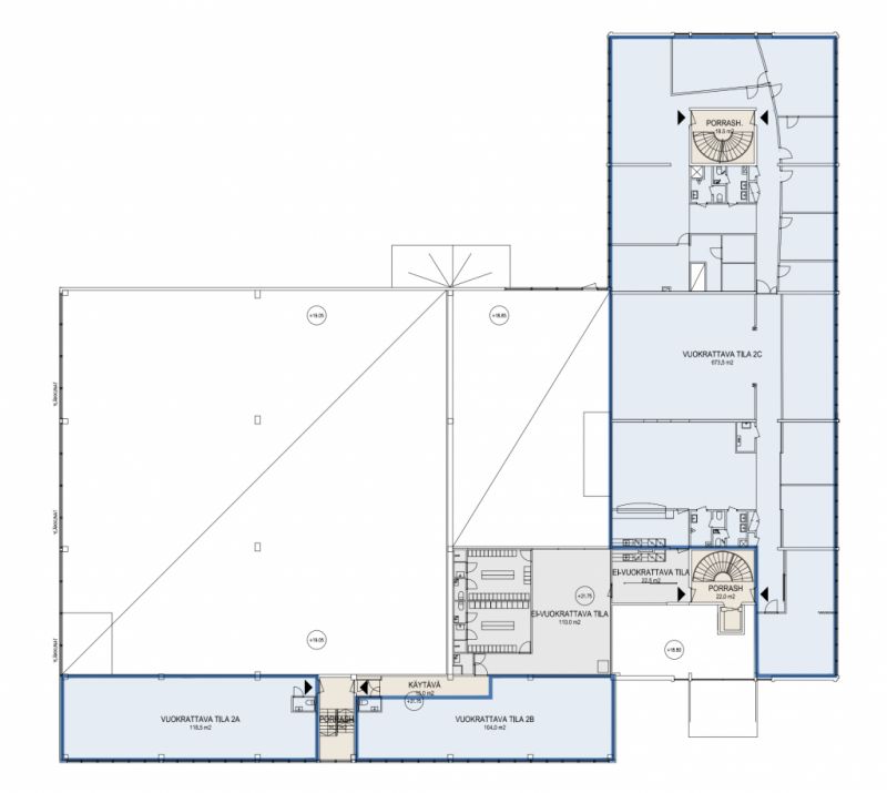
Valoisa, rauhallinen toimisto 2. krs vapaana. Tila on selkeän suorakaiteen muotoinen, oma wc on. Oma sisäänkäynti naapuritilan kanssa. Talossa mukavuutta lisäävä keskitetty viilennys ilmanvaihdossa. Tilalle varattu 3 ap a`10 €/kk + alv. Kysy tilan vuokrahintaa. Hinta sisältää hoitovuokran.
Osoite
Ristipellontie 16, 00390 Helsinki
Tilatyyppi
Toimistotilaa
118 m2
Vapautuu
Kysy
Huoneiden lukumäärä
1
Energiatehokkuusluokka
Ei lain edellyttämää energiatodistusta
Ota yhteyttä
RHG Real Estate
Hämeenkatu 2 B20, 20500 Turku
Näytä puhelinnumero
020 734 4020
Mika Tilli
Välittäjä, LKV
Näytä puhelinnumero
0407013005
Pyydä lisätietoa
