Vuokrataan toimistotilat - Helsinki
Lemuntie 7, Vallila, 00510 Helsinki #10731249
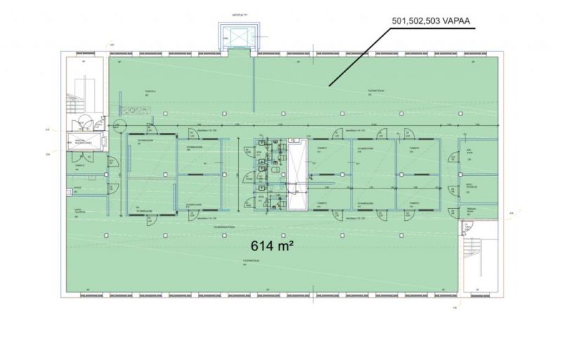
Vuokrataan valoisa viidennen kerroksen 614m2 toimistotila erinomaisella sijainnilla Vallilassa. Vallilan Akseli & Elina on tunnettu etenkin designin, teollisen muotoilun sekä muiden luovien alojen yrityksistä. Kiinteistön tiloissa yhdistyvät kiehtovalla tavalla mennyt, nykyisyys ja tuleva.
Rakennukset ovat toimineet aiemmin radioverstaana sekä linja-autojen koritehtaana.Tilat ovat saneerattuja ja siistejä. Kiinteistössä on lisäksi suosittu Antell lounasravintola. Kiinteistöön on helppo tulla myös pyörällä tai omalla autolla. Lähin parkkihalli on Elimäenkadun Aimo Park, johon on suora hissisisäänkäynti Nokiantieltä Akselin & Elinan vierestä.
Kysy lisää, Jouko Raitanen puh. 0504695444
RHG Real Estate
Hämeenkatu 2 B20, 20500 Turku
Näytä puhelinnumero
020 734 4020
Jouko Raitanen
Näytä puhelinnumero
050 469 5444
