Vuokrataan toimistotilat - Espoo
Ahventie 4, Haukilahti, 02170 Espoo #10731013
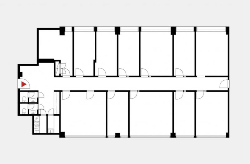
Vuokrataan 245m2 toimisto Ahti Business Parkin viidennestä kerroksesta. Tilassa huoneita, keittiö ja wc-tilat. Moderni sisääntuloaula on uusittu vuonna 2017.
Ahti Business Park sijaitsee Länsiväylän varrella Espoon Haukilahdessa, josta on erinomaiset liikenneyhteydet. Lähimmälle bussipysäkille on vain n. 200 metriä. Niittykummun metroasema sijaitsee 10 min kävelymatkan päässä Merituulentien ja Haukilahdenkadun kulmauksessa. Matka Helsingin Rautatientorille kestää noin 17 minuuttia.
Ahti Business Parkissa palvelee kiinteistön aulapalvelu niin rakennuksessa toimijoita kuin vierailijoita. Lisäksi kohteelta löytyy paljon pysäköintitilaa, lounasravintola ja vuokrattavia neuvottelutiloja.
Kysy lisää. Jouko Raitanen, Helsinki puh. 0504695444.
RHG Real Estate
Hämeenkatu 2 B20, 20500 Turku
Näytä puhelinnumero
020 734 4020
Jouko Raitanen
Näytä puhelinnumero
050 469 5444
