Vuokrataan toimistotilat, varastotilat - Espoo
Alaniementie 2, Odilampi, 02970 Espoo #10730985
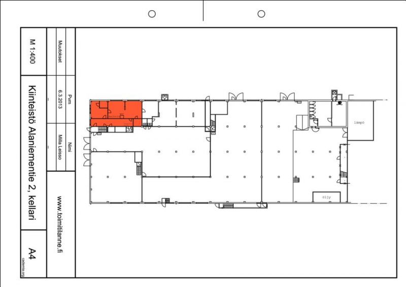
Edullinen toimistotila Espoo Vihdintien varrella, sopii myös kevytvarastointiin.
Osoite
Alaniementie 2, 02970 Espoo
Tilatyyppi
Toimistotilaa
111 m2
Varastotilaa
111 m2
Yhteensä
111 m2
Vapautuu
Kysy
Huoneiden lukumäärä
1
Energiatehokkuusluokka
Ei lain edellyttämää energiatodistusta
Ota yhteyttä
RHG Real Estate
Hämeenkatu 2 B20, 20500 Turku
Näytä puhelinnumero
020 734 4020
Mika Tilli
Välittäjä, LKV
Näytä puhelinnumero
0407013005
Pyydä lisätietoa
