Vuokrataan toimistotilat - Helsinki
Valimotie 13 A, Pitäjänmäki, 00380 Helsinki #10730977
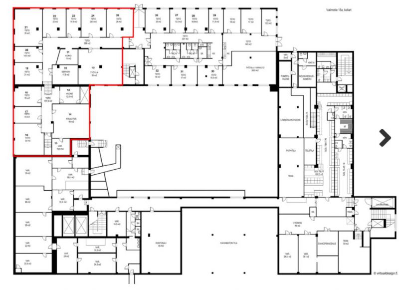
Vuokrataan 476m2 toimistotilaa pohjakerroksessa. Tilat koostuvat useammasta tilavasta toimistohuoneesta sekä neuvotteluhuoneesta. Huoneita on mahdollisuus jakaa tai vuokrata vain osa tilasta.Tarvittavat remontit ja tilamuutokset suunnitellaan vuokralaisen tarpeiden mukaisesti.
Valimo Centerin Valimotie 13A:ssa sijaitsee kaikkia vuokralaisia palvelevat aulapalvelut ja rakennuksen katutasossa runsaan lounaan arkipäivisin tarjoilee Ravintola Factory. Ravintolan takaosasta löytyy neuvottelutilat: Paja, Verstas ja Tehdas, jotka ovat vuokrattavissa joustavasti – kokoustarjoiluilla tai ilman.
Kysy lisää Jouko Raitanen Helsinki puh. 0504695444
RHG Real Estate
Hämeenkatu 2 B20, 20500 Turku
Näytä puhelinnumero
020 734 4020
Jouko Raitanen
Näytä puhelinnumero
050 469 5444
