Vuokrataan liiketilat - Turku
Kristiinankatu 8, 20100 Turku #10730718
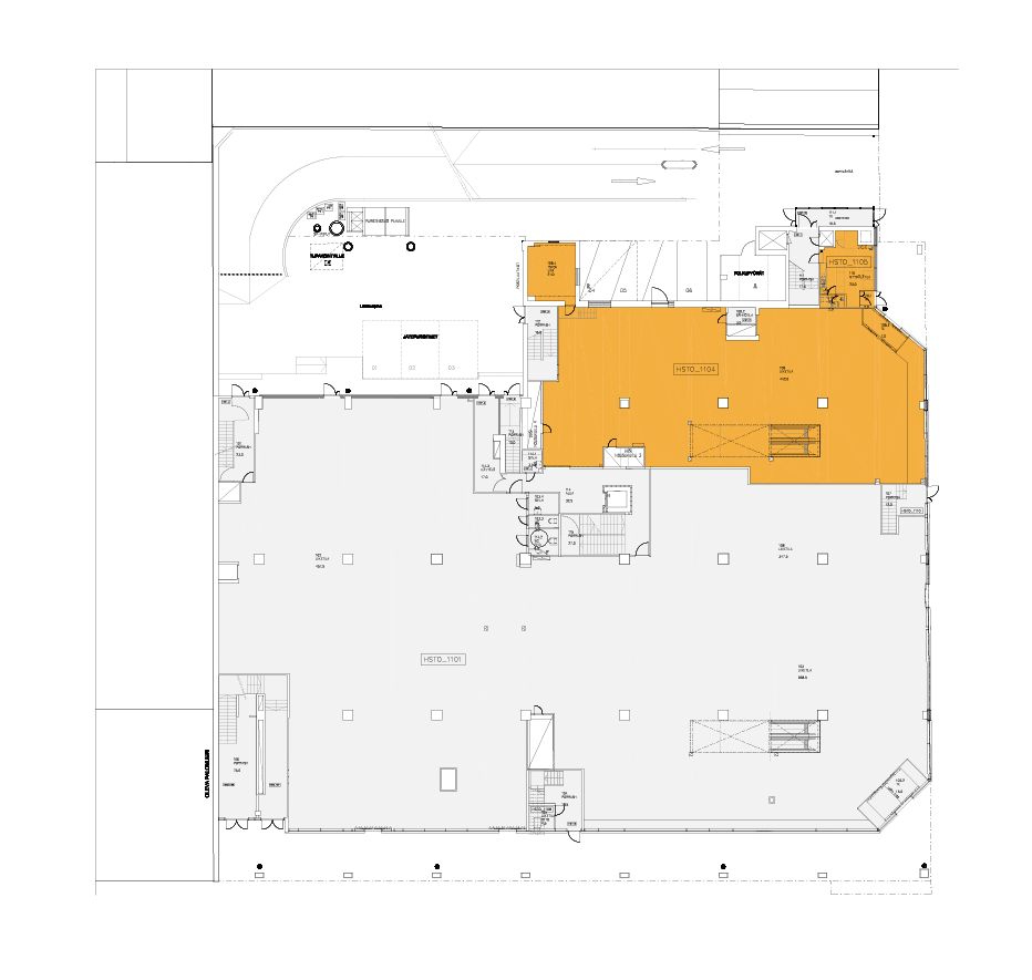
Vuokrattavana liiketilaa Turun keskustassa, kauppakeskus Centrumissa.
Osoite
Kristiinankatu 8, 20100 Turku
Tilatyyppi
Liiketilaa
2568,5 m2
Tilajako
Jaettavissa
laajennettavissa 504,5 m²/2064 m²
Kiinteistö
Vuokrattavana liiketilaa Turun keskustassa, kauppakeskus Centrumissa. Liiketila sijaitsee kahdessa kerroksessa. 1.krs 504,5 m2 ja 2.krs 2064 m2, liukuportaat 2.krs:een. Tila jaettavissa 2-3 tilaan. Kellarissa erikseen vuokrattavia varastoja koko tilan vuokrauksen yhteydessä.
Sijainti
Turun keskusta
Pysäköinti
Pysäköintitilaa runsaasti parkkihallissa.
Kulkuyhteydet
-Juna
-Bussi
-Oma auto
-Bussi
-Oma auto
Vapautuu
Heti
Kerros
1-2
Energiatehokkuusluokka
Ei lain edellyttämää energiatodistusta
Näkyvällä paikalla
Jaettavissa
Hissi
Ota yhteyttä
REALIUM OY LKV
Tammasaarenkatu 1, 00180 Helsinki
Vaihde:
Näytä puhelinnumero
010 326 346
Tuomo Mäkelä
tuomo.makela@realium.fi
p.
Näytä puhelinnumero
044 050 1158
Joel Keto
joel.keto@realium.fi
p.
Näytä puhelinnumero
045 317 0330
KAIKKI TILAVAIHTOEHDOT KERRALLA!
SOITA - MEILAA JA TILAA NÄYTTÖ!
Ilmainen palvelu tilanhakijoille.
Kartoitamme parhaat tilavaihtoehdot.
Kaikki kohteet eivät ole netissä.
Pyydä lisätietoa
