Vuokrataan toimistotilat - Helsinki
Valimo Center, Valimotie 13 B, Pitäjänmäki, 00380 Helsinki #10730549
Siistiä 496 m² toimistoa modernisoidussa kiinteistössä Pitäjänmäellä
Osoite
Valimotie 13 B, 00380 Helsinki
Tilatyyppi
Toimistotilaa
496 m2
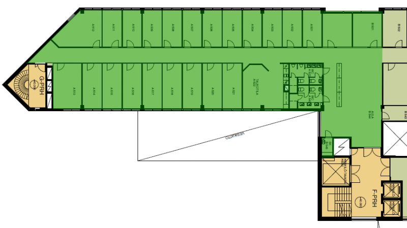
Pohjapiirros
Kiinteistö
5. kerroksen 496 m² toimisto on tällä hetkellä huonetoimistoa mutta voidaan muokata esim. avotoimistoksi tai monitilatoimistoksi tulevan vuokralaisen toiveiden mukaan.
Valimo Centerin Valimotie 13 A:ssa sijaitsee kaikkia vuokralaisia palvelevat aulapalvelut ja rakennuksen katutasossa runsaan lounaan arkipäivisin tarjoilee Ravintola Factory. Ravintolan takaosasta löytyy neuvottelutilat: Paja, Verstas ja Tehdas, jotka ovat vuokrattavissa joustavasti – kokoustarjoiluilla tai ilman. Talon vuokralaisten käytössä on 13 A:ssa sijaitseva kuntosali ja remontoidut saunatilat.
Kiinteistö sijaitsee keskeisellä paikalla pääkaupunkiseudulla. Juna, Jokerilinja sekä bussiyhteydet ovat talon vieressä. Valimon asemalle kävelee viidessä minuutissa ja keskustaan sekä lentokentälle on alle 20 minuutin ajomatka.
Valimo Centerin Valimotie 13 A:ssa sijaitsee kaikkia vuokralaisia palvelevat aulapalvelut ja rakennuksen katutasossa runsaan lounaan arkipäivisin tarjoilee Ravintola Factory. Ravintolan takaosasta löytyy neuvottelutilat: Paja, Verstas ja Tehdas, jotka ovat vuokrattavissa joustavasti – kokoustarjoiluilla tai ilman. Talon vuokralaisten käytössä on 13 A:ssa sijaitseva kuntosali ja remontoidut saunatilat.
Kiinteistö sijaitsee keskeisellä paikalla pääkaupunkiseudulla. Juna, Jokerilinja sekä bussiyhteydet ovat talon vieressä. Valimon asemalle kävelee viidessä minuutissa ja keskustaan sekä lentokentälle on alle 20 minuutin ajomatka.
Vapautuu
Heti
Rakennusvuosi
1987
Kerros
4 / 5
Energiatehokkuusluokka
Ei lain edellyttämää energiatodistusta
Hissi
Lastauslaituri
Ota yhteyttä
ScanReal Oy LKV
Opus Business Park
Hitsaajankatu 24
00810 Helsinki
info@scanreal.fi
Puh:
Näytä puhelinnumero
020 730 8830
Sopivat toimitilat yhdellä otolla!
Kartoitamme toimitilatarpeesi ja etsimme yrityksellesi parhaiten sopivat vapaat toimitilat. Koska vuokranantajat maksavat palvelumme, on tämä yrityksellesi veloituksetonta.
OTA YHTEYTTÄ - SOVI NÄYTTÖ!
Kaikki kohteemme eivät ole netissä, kerro tilatarpeesi niin kartoitamme vaihtoehdot.
Palvelumme on tilanhakijalle ilmainen
Pyydä lisätietoa
