Vuokrataan toimistotilat - Helsinki
Kaisaniemenkatu 1, Keskusta, 00100 Helsinki #10730529
Uutta ja monipuolista tilaa paraatipaikalta Kaisaniemenkadulta.
Osoite
Kaisaniemenkatu 1, 00100 Helsinki
Tilatyyppi
Toimistotilaa
687 m2
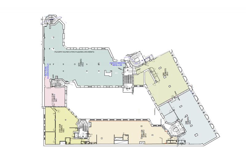
Pohjapiirros
Kiinteistö
Koko sisäpihan kerros vapaana arvokiinteistössä.
Kerroksesta on vuokrattavissa esim. 687 m² kokonaisuus.
Tämä 100-vuotias maamerkki on juuri remontoitu, perinteitä kunnioittaen.
Kellarissa uusi pyöräparkki ja suihkutilat sekä miehille, että naisille.
Kerroksesta on vuokrattavissa esim. 687 m² kokonaisuus.
Tämä 100-vuotias maamerkki on juuri remontoitu, perinteitä kunnioittaen.
Kellarissa uusi pyöräparkki ja suihkutilat sekä miehille, että naisille.
Sijainti
Keskusta
Pysäköinti
Keskustan yleiset pysäköintilaitokset palvelevat lähistöllä
Palvelut
Keskustan kaikki palvelut
Kulkuyhteydet
Metroasema 100 m, Raitiovaunupysäkki alle 100 m, Bussipysäkki 100 m, Juna-asema 200 m, Lentoasema 16,3 km
Vapautuu
Heti
Kerros
3
Energiatehokkuusluokka
G
Näkyvällä paikalla
Hissi
Ota yhteyttä
ScanReal Oy LKV
Opus Business Park
Hitsaajankatu 24
00810 Helsinki
info@scanreal.fi
Puh:
Näytä puhelinnumero
020 730 8830
Sopivat toimitilat yhdellä otolla!
Kartoitamme toimitilatarpeesi ja etsimme yrityksellesi parhaiten sopivat vapaat toimitilat. Koska vuokranantajat maksavat palvelumme, on tämä yrityksellesi veloituksetonta.
OTA YHTEYTTÄ - SOVI NÄYTTÖ!
Kaikki kohteemme eivät ole netissä, kerro tilatarpeesi niin kartoitamme vaihtoehdot.
Palvelumme on tilanhakijalle ilmainen
Pyydä lisätietoa
