Vuokrataan toimistotilat - Jyväskylä
Kauppakatu 33-35, Keskusta, 40100 Jyväskylä #10730430
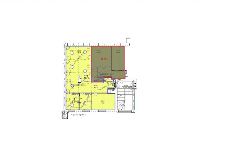
Vuokrataan 2. krs toimistotilaa erinomaisella sijainnilla Kauppakeskus Tawastista. 38 m2 toimistotilassa on kaksi toimistohuonetta, wc-tilat sekä aula. Sijainti ydinkeskustassa on helposti saavutettavissa ja kaikki keskustan palvelut ovat lähellä. Autohallipaikan vuokraaminen samassa kiinteistössä sijaitsevasta parkkihallista on mahdollista. Ota yhteyttä lisätietoja ja esittelyä varten! Ota yhteyttä lisätietoja ja esittelyä varten!
Aveon Real Estate Oy
Kauppakatu 18 C 26, 40100 Jyväskylä
Henri Kumpulainen
Puh.
Näytä puhelinnumero
040 864 3631
henri.kumpulainen@aveon.fi
Olemme kiinteistöliiketoiminnan asiantuntija, joka toimii yrittäjämäisesti neuvonantajana kiinteistökaupoissa, toimitilavälittämisessä sekä kiinteistökehityksessä.
Asiakkaitamme ovat kotimaiset ja ulkomaiset kiinteistönomistajat, -sijoittajat sekä tilojen käyttäjät kaikkialla Suomessa.
