Vuokrataan toimistotilat, varastotilat, hoivatilat - Jyväskylä
Varikkotie 89, Vaajakoski, 40800 Jyväskylä #10730178
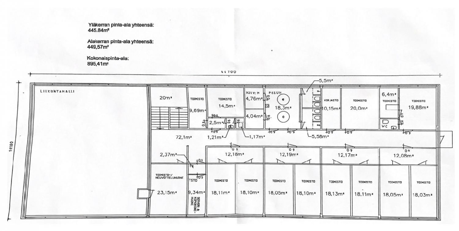
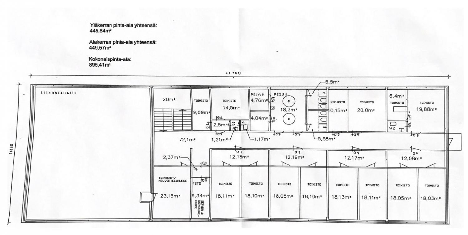
Vuokrataan 210 m2 toimisto-/ hoivatilaa
Osoite
Varikkotie 89, 40800 Jyväskylä
Tilatyyppi
Toimistotilaa
210 m2
Varastotilaa
210 m2
Hoivatilaa
200 - 895 m2
Yhteensä
210 m2
Kiinteistö
Vuokrataan Kanavuoresta toimisto-, varasto- / hoivatilaa noin 210 m2.
Vapaana siistiä ja remontoitua toimisto-, varasto ja hoivatilaa Kanavuoresta. Yläkerrassa on siistiä ja remontoitua toimistotilaa n. 210 m2. Tilassa on reilun kokoisia toimistohuoneita, jotka soveltuvat useamman, kuin yhden henkilön toimistoiksi. Tilat soveltuvat myös esim. majoitustoimintaan. Kerroksessa neuvottelutila ja keittiö- / taukotila. Alakerrassa peruskuntoinen sauna ja suihkutila esim. maastossa työskenteleville työntekijöille. Alakerrassa on myös n. 190 neliöinen liikuntasali, joka toimii tällä hetkellä varastona. Liikuntasalin vapaa korkeus on 4,9 - 5,9 m. Pihatilaa mahdollisuus vuokrata säilytykseen.
Sijainti
Vaajakosken Kanavuoressa lähellä ysitietä ja Vaajakosken ABC-liikenneasemaa. Hyvien liikenneyhteyksien varrella.
Vapaana siistiä ja remontoitua toimisto-, varasto ja hoivatilaa Kanavuoresta. Yläkerrassa on siistiä ja remontoitua toimistotilaa n. 210 m2. Tilassa on reilun kokoisia toimistohuoneita, jotka soveltuvat useamman, kuin yhden henkilön toimistoiksi. Tilat soveltuvat myös esim. majoitustoimintaan. Kerroksessa neuvottelutila ja keittiö- / taukotila. Alakerrassa peruskuntoinen sauna ja suihkutila esim. maastossa työskenteleville työntekijöille. Alakerrassa on myös n. 190 neliöinen liikuntasali, joka toimii tällä hetkellä varastona. Liikuntasalin vapaa korkeus on 4,9 - 5,9 m. Pihatilaa mahdollisuus vuokrata säilytykseen.
Sijainti
Vaajakosken Kanavuoressa lähellä ysitietä ja Vaajakosken ABC-liikenneasemaa. Hyvien liikenneyhteyksien varrella.
Vapautuu
Kysy
Kerros
1-2
Ota yhteyttä
Logistila Oy
Yliopistonkatu 8, 40100 JYVÄSKYLÄ
Kimmo Oravuo
Näytä puhelinnumero
0452644180
Pyydä lisätietoa
