Vuokrataan liiketilat - Jyväskylä
Kauppakeskus Tawast @ Versonraitti, Keskusta, 40100 Jyväskylä #10730125
Liiketila & Toimistotila
Osoite
Kauppakeskus Tawast @ Versonraitti, 40100 Jyväskylä
Tilatyyppi
Liiketilaa
21 - 775 m2
Kiinteistö
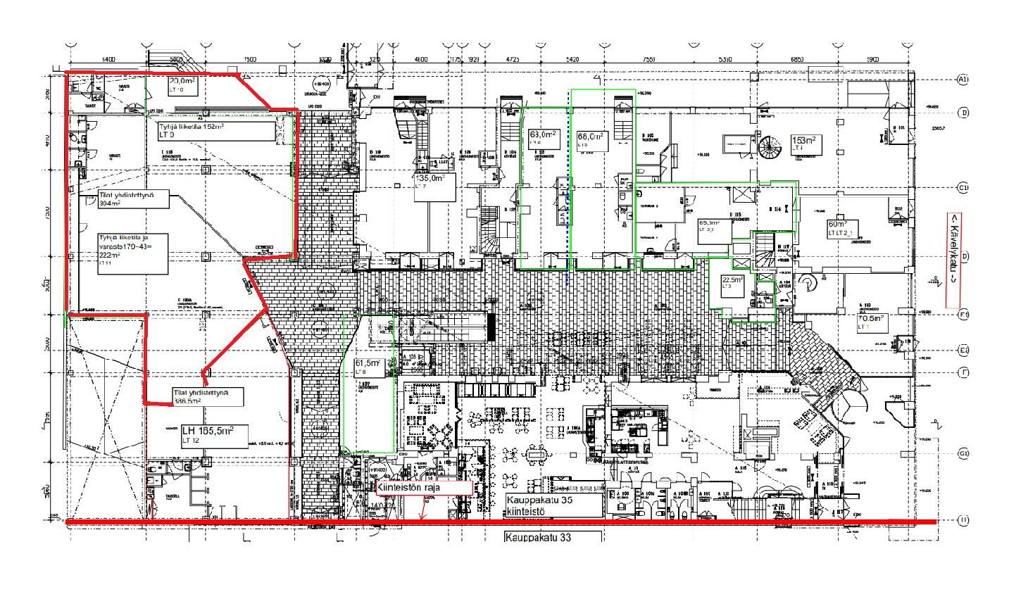
Liike ja toimistotilaa Kauppakeskus Tawast
Kauppakeskus Tawast @ Versonraitilla pitää sisällään liiketiloja ja toimistoja.
Kiinteistö sijaitsee Jyväskylän ydinkeskustassa kävelykadulla.
Vuokrattavia liikehuoneistoja:
21 m² liikehuoneisto
61,5 m² liikehuoneisto
63 m² liikehuoneisto
65,5 m² liikehuoneisto
67 m² liikehuoneisto
152 m² liikehuoneisto
165,5 m² liikehuoneisto
179 m² liikehuoneisto
Liikehuoneistoja voidaan yhdistellä ja säätää sopivaan kokoluokkaan.
Tilat sijaitsevat yhdyskäytävän varrella, joka yhdistää Tawast kauppakeskuksen Torikeskukseen. Tiloihin suorakulku myös Versonraitilta.
Siistit liiketilat, joissa ikkunapintaa käytävälle ja hyvät myymälävalot.
Useissa liiketiloissa on pienet varastotilat, wc ja keittiötila.
Liiketiloja remontoidaan vuokraajan toiveiden mukaan. Remonttikulut jyvitetään vuokraan.
Vuokrattavia toimistotiloja:
38 m² toimistotila - napakka 2. kerroksen toimistotila. Kaksi toimistohuonetta, eteinen ja wc, jossa suihku.
Pohjakuvan tilat B222-B225 kuuluvat tähän kokonaisuuteen. Käynti tiloihin Versonraitilta, ikkunat Kauppalaiskujalle.
Kiinteistö ja sijainti
Vuokrattavat tilat sijaitsevat Jyväskylän ydinkeskustassa Tawastin kauppakeskuksen, Torikeskuksen ja Versonraitin yhdyskäytävän varrella.
Päivittäinen asiakasvirta on valtava ja markkinointitapahtumia alueella on viikoittain.
Ota yhteyttä ja sovitaan kohdekierroksesta!
Kauppakeskus Tawast @ Versonraitilla pitää sisällään liiketiloja ja toimistoja.
Kiinteistö sijaitsee Jyväskylän ydinkeskustassa kävelykadulla.
Vuokrattavia liikehuoneistoja:
21 m² liikehuoneisto
61,5 m² liikehuoneisto
63 m² liikehuoneisto
65,5 m² liikehuoneisto
67 m² liikehuoneisto
152 m² liikehuoneisto
165,5 m² liikehuoneisto
179 m² liikehuoneisto
Liikehuoneistoja voidaan yhdistellä ja säätää sopivaan kokoluokkaan.
Tilat sijaitsevat yhdyskäytävän varrella, joka yhdistää Tawast kauppakeskuksen Torikeskukseen. Tiloihin suorakulku myös Versonraitilta.
Siistit liiketilat, joissa ikkunapintaa käytävälle ja hyvät myymälävalot.
Useissa liiketiloissa on pienet varastotilat, wc ja keittiötila.
Liiketiloja remontoidaan vuokraajan toiveiden mukaan. Remonttikulut jyvitetään vuokraan.
Vuokrattavia toimistotiloja:
38 m² toimistotila - napakka 2. kerroksen toimistotila. Kaksi toimistohuonetta, eteinen ja wc, jossa suihku.
Pohjakuvan tilat B222-B225 kuuluvat tähän kokonaisuuteen. Käynti tiloihin Versonraitilta, ikkunat Kauppalaiskujalle.
Kiinteistö ja sijainti
Vuokrattavat tilat sijaitsevat Jyväskylän ydinkeskustassa Tawastin kauppakeskuksen, Torikeskuksen ja Versonraitin yhdyskäytävän varrella.
Päivittäinen asiakasvirta on valtava ja markkinointitapahtumia alueella on viikoittain.
Ota yhteyttä ja sovitaan kohdekierroksesta!
Vapautuu
Kysy
Kerros
Katutaso
Ota yhteyttä
LogisTila Oy
Rautpohjankatu 10, 40700 Jyväskylä
Kimmo Oravuo
Näytä puhelinnumero
0452644180
Pyydä lisätietoa
