Vuokrataan toimistotilat - Jyväskylä
Savelan Yritysalue, Savela, 40700 Jyväskylä #10730055
Toimistotila @ Savela
Osoite
Savelan Yritysalue, 40700 Jyväskylä
Tilatyyppi
Toimistotilaa
146 - 300 m2
Kiinteistö
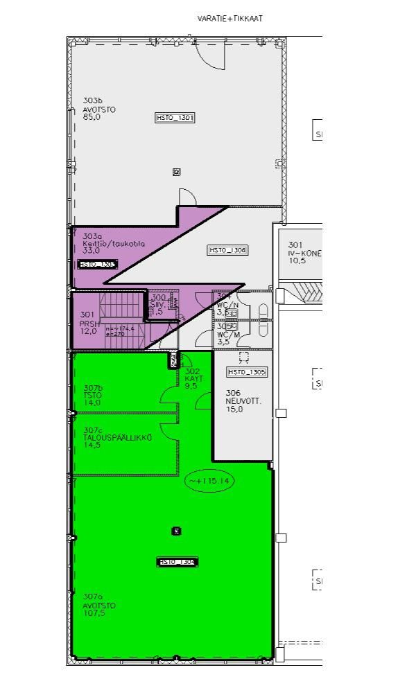
Toimistotilaa 146 - 300 m² Savelasta!
Jyväskylän Savelassa osoitteessa Onkapannu 3 vuokrattavana 3. kerroksen siisti ja nykyaikainen toimistotila. Kiinteistön osoite on Onkapannu 3.
Avara, ilmava ja jäähdytetty monitilatoimisto sekä erillistä toimistohuonetta. Avotilassa huonekorkeus n. 3,5 m.
Tilassa on sopivasti ikkunoita tuomaan päivänvaloa toimistoon ja kokonaisuus on tasokkaan tyylikäs.
Voidaan järjestää myös n. 350 m2 varastotilaa.
Kiinteistö ja sijainti
Kokonaisuuteen kuuluu 15 - 20 tolpallista autopaikkaa ja muut pysäköintipaikat.
Alueella toimii mm. metallialan tuotantoyrityksiä, kiinteistönhuolto yrityksiä, teknistä kauppaa ja kaukolämmön tuotantolaitos. Tontti on aidattu.
Onkapannu 3 sijaitsee helppojen kulkuyhteyksien varrella. Jyväskylän keskustaan n. 2,5 km, keskussairaalalle n. 2 km, Laajavuoreen n. 2 km, Rautpohjaan n. 2 km. Savelan alueella on mm. lounaspaikkoja, ruokakauppoja, huoltoasema ja kuntosali.
Soita! Käydään paikan päällä.
Jyväskylän Savelassa osoitteessa Onkapannu 3 vuokrattavana 3. kerroksen siisti ja nykyaikainen toimistotila. Kiinteistön osoite on Onkapannu 3.
Avara, ilmava ja jäähdytetty monitilatoimisto sekä erillistä toimistohuonetta. Avotilassa huonekorkeus n. 3,5 m.
Tilassa on sopivasti ikkunoita tuomaan päivänvaloa toimistoon ja kokonaisuus on tasokkaan tyylikäs.
Voidaan järjestää myös n. 350 m2 varastotilaa.
Kiinteistö ja sijainti
Kokonaisuuteen kuuluu 15 - 20 tolpallista autopaikkaa ja muut pysäköintipaikat.
Alueella toimii mm. metallialan tuotantoyrityksiä, kiinteistönhuolto yrityksiä, teknistä kauppaa ja kaukolämmön tuotantolaitos. Tontti on aidattu.
Onkapannu 3 sijaitsee helppojen kulkuyhteyksien varrella. Jyväskylän keskustaan n. 2,5 km, keskussairaalalle n. 2 km, Laajavuoreen n. 2 km, Rautpohjaan n. 2 km. Savelan alueella on mm. lounaspaikkoja, ruokakauppoja, huoltoasema ja kuntosali.
Soita! Käydään paikan päällä.
Vapautuu
Kysy
Kerros
3
Ota yhteyttä
LogisTila Oy
Rautpohjankatu 10, 40700 Jyväskylä
Kimmo Oravuo
Näytä puhelinnumero
0452644180
Pyydä lisätietoa
