Vuokrataan toimistotilat - Jyväskylä
Kuormaajantie 7, Seppälänkangas, 40320 Jyväskylä #10730053
Vuokrataan toimistotilaa Kuormaajantieltä
Osoite
Kuormaajantie 7, 40320 Jyväskylä
Tilatyyppi
Toimistotilaa
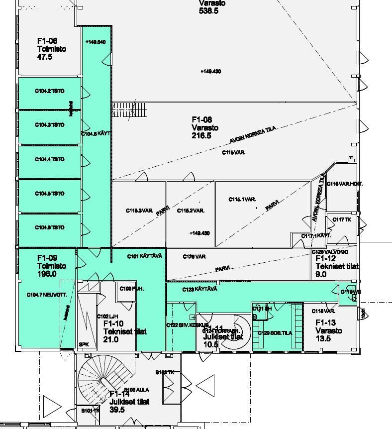
196 m2
Kiinteistö
Vuokrataan 196 m² siistiä toimistotilaa Kuormaajantieltä
Tässä siistissä ja modernissa toimistossa Kuormaajantiellä on viisi toimistohuonetta ja avotoimisto / neuvottelutilaa.
Tilassa omat sos.- ja wc-tilat. Toimisto sijaitsee kiinteistön ensimmäisessä kerroksessa.
Tila jäähdytetty, palkkijäähdytys. Kiinteistössä on kaikkinensa 6316 m2. Toimisto on kunnoltaan hyvä ja siisti. Tiloja on mahdollista muokata itselle sopivaksi.
Tilojen käyttö on mahdollista iltaisin ja viikonloppuisin. Kiinteistöön tulee valokuitu. Vuokralainen järjestää omien tilojen siivouksen.
Tolpallisia parkkipaikkoja löytyy, vapaiden paikkojen tilanne täytyy tarkistaa.
Sijainti
Kuormaajantie 7 kiinteistölle Laukaantien risteyksestä on noin 700 m. Jyväskylän keskustaan n. 5 km.
Lähettyvillä Kuormaajantien varressa useita lounaspaikkoja.
Ota yhteyttä!
Tässä siistissä ja modernissa toimistossa Kuormaajantiellä on viisi toimistohuonetta ja avotoimisto / neuvottelutilaa.
Tilassa omat sos.- ja wc-tilat. Toimisto sijaitsee kiinteistön ensimmäisessä kerroksessa.
Tila jäähdytetty, palkkijäähdytys. Kiinteistössä on kaikkinensa 6316 m2. Toimisto on kunnoltaan hyvä ja siisti. Tiloja on mahdollista muokata itselle sopivaksi.
Tilojen käyttö on mahdollista iltaisin ja viikonloppuisin. Kiinteistöön tulee valokuitu. Vuokralainen järjestää omien tilojen siivouksen.
Tolpallisia parkkipaikkoja löytyy, vapaiden paikkojen tilanne täytyy tarkistaa.
Sijainti
Kuormaajantie 7 kiinteistölle Laukaantien risteyksestä on noin 700 m. Jyväskylän keskustaan n. 5 km.
Lähettyvillä Kuormaajantien varressa useita lounaspaikkoja.
Ota yhteyttä!
Vapautuu
Kysy
Kerros
1
Ota yhteyttä
Logistila Oy
Yliopistonkatu 8, 40100 JYVÄSKYLÄ
Kimmo Oravuo
Näytä puhelinnumero
0452644180
Pyydä lisätietoa
