Vuokrataan tuotantotilat - Kouvola
Myllytie 10, Voikkaa, 45910 Kouvola #10730024
Puusepän verstas
Osoite
Myllytie 10, 45910 Kouvola
Tilatyyppi
Tuotantotilaa
450 m2
Kiinteistö
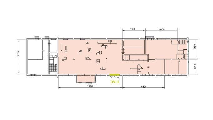
Valmiilla infralla oleva puusepän verstas sisältää olemassa olevan konekannan, purupoistot, kuivaushuoneet 2 kpl ja tuotantotilat.
Verstaalla oma WC ja sosiaalitilat.
Tässä matalan kynnyksen mahdollisuus aloittavalla puusepän alan yritykselle tai toiminnan laajentamiseen Kouvolan alueelle.
Kymijoen rannalla, Kouvolassa sijaitseva yritysalue on perustettu UPM:n Voikkaan entisen paperitehtaan tiloihin. Valmista rakennuskantaa on noin 100 000 m².
Pinta-alaltaan noin 60 hehtaarin alueella on mahdollisuus myös uudiskohteiden rakentamiseen.
Logistisesti erinomaisella paikalla sijaitseva alue muodostaa ainutlaatuisen ympäristön liiketoiminnalle.
Alueella toimii tällä hetkellä noin 30 yritystä, joilla on kysyntää erilaisille palveluille.
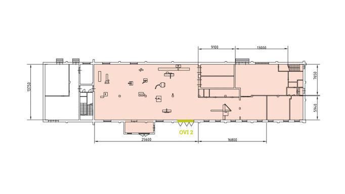
Verstaalla oma WC ja sosiaalitilat.
Tässä matalan kynnyksen mahdollisuus aloittavalla puusepän alan yritykselle tai toiminnan laajentamiseen Kouvolan alueelle.
Kymijoen rannalla, Kouvolassa sijaitseva yritysalue on perustettu UPM:n Voikkaan entisen paperitehtaan tiloihin. Valmista rakennuskantaa on noin 100 000 m².
Pinta-alaltaan noin 60 hehtaarin alueella on mahdollisuus myös uudiskohteiden rakentamiseen.
Logistisesti erinomaisella paikalla sijaitseva alue muodostaa ainutlaatuisen ympäristön liiketoiminnalle.
Alueella toimii tällä hetkellä noin 30 yritystä, joilla on kysyntää erilaisille palveluille.
Vapautuu
Kysy
Kerros
1
Ota yhteyttä
Pyydä lisätietoa
