Vuokrataan toimistotilat - Jyväskylä
Jyskän Yritysalue, Jyskä, 40420 Jyväskylä #10729988
Toimistotilaa Jyskässä
Osoite
Jyskän Yritysalue, 40420 Jyväskylä
Tilatyyppi
Toimistotilaa
12 - 1350 m2
Kiinteistö
Toimistotilaa kaikissa kokoluokissa Jyskässä!
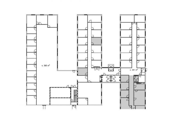
Jyskässä hyvien kulkuyhteyksien varrelta vuokrattavana toimistotilaa 12 - 1350 m² haarukassa. Kiinteistön osoite on Salvesenintie 6.
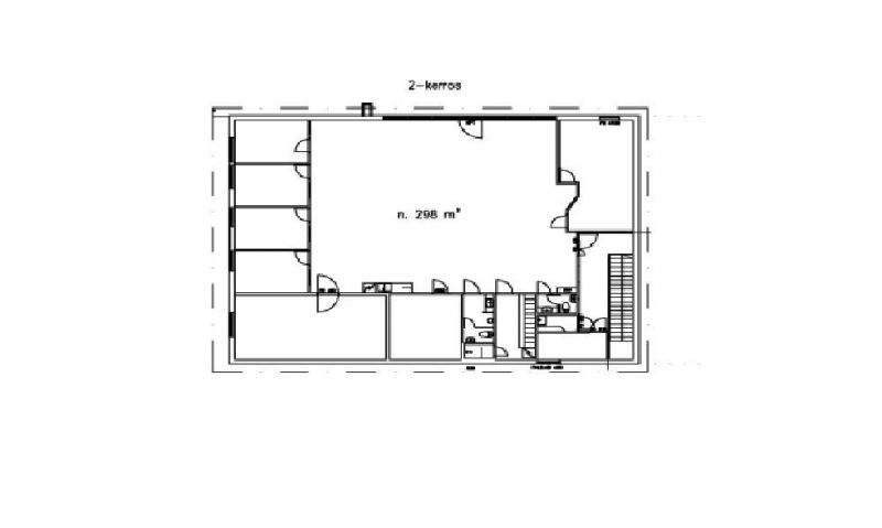
Osa tiloista on jäähdytetty. Suurin osa tiloista on katutasossa, ja vuokrattavana on myös kakkoskerroksen 290 m² kokonaisuus.
Yhteiskäyttöiset keittiö- & taukotilat ja wc -tilat. Vuokrattaessa isompi kokonaisuus kerralla mahdollisuus saada oma keittiö ja wc -tilat.
Tiloja on mahdollisuus säätää asiakkaan tilatarpeiden mukaisesti.
PS! Mitä isomman neliömäärän vuokraat - sitä edullisempi on neliövuokra!
Kiinteistö ja sijainti
Kiinteistö on hyvässä kunnossa sisäilmaltaan terve. Kaikki on kohteessa muuttovalmiina ja yhetydet pelaa. Piha-alueella on autopaikkoja riittävästi.
Kiinteistö on Jyskässä hyvien kulkuyhteyksien äärellä Vaajakosken moottoritien varrella noin 4,5 kilometrin päässä Jyväskylän keskustasta.
Lähellä sijaitsevia palveluita:
Jyskän Lidl, Viherlandia lounaspaikkoineen, LeWell kuntosali, Jyskän Varastomyymälä. Vaajakosken ja Seppälän alueen palvelut myös lähettyvillä.
Ota yhteyttä!
Jyskässä hyvien kulkuyhteyksien varrelta vuokrattavana toimistotilaa 12 - 1350 m² haarukassa. Kiinteistön osoite on Salvesenintie 6.
Osa tiloista on jäähdytetty. Suurin osa tiloista on katutasossa, ja vuokrattavana on myös kakkoskerroksen 290 m² kokonaisuus.
Yhteiskäyttöiset keittiö- & taukotilat ja wc -tilat. Vuokrattaessa isompi kokonaisuus kerralla mahdollisuus saada oma keittiö ja wc -tilat.
Tiloja on mahdollisuus säätää asiakkaan tilatarpeiden mukaisesti.
PS! Mitä isomman neliömäärän vuokraat - sitä edullisempi on neliövuokra!
Kiinteistö ja sijainti
Kiinteistö on hyvässä kunnossa sisäilmaltaan terve. Kaikki on kohteessa muuttovalmiina ja yhetydet pelaa. Piha-alueella on autopaikkoja riittävästi.
Kiinteistö on Jyskässä hyvien kulkuyhteyksien äärellä Vaajakosken moottoritien varrella noin 4,5 kilometrin päässä Jyväskylän keskustasta.
Lähellä sijaitsevia palveluita:
Jyskän Lidl, Viherlandia lounaspaikkoineen, LeWell kuntosali, Jyskän Varastomyymälä. Vaajakosken ja Seppälän alueen palvelut myös lähettyvillä.
Ota yhteyttä!
Vapautuu
Kysy
Kerros
katutaso
Ota yhteyttä
LogisTila Oy
Rautpohjankatu 10, 40700 Jyväskylä
Kimmo Oravuo
Näytä puhelinnumero
0452644180
Pyydä lisätietoa
