Vuokrataan toimistotilat - Nokia
Tanhuankatu 2, Keskusta, 37100 Nokia #10729928
100 m2 toimistotila Nansotalosta
Osoite
Tanhuankatu 2, 37100 Nokia
Tilatyyppi
Toimistotilaa
100 m2
Kiinteistö
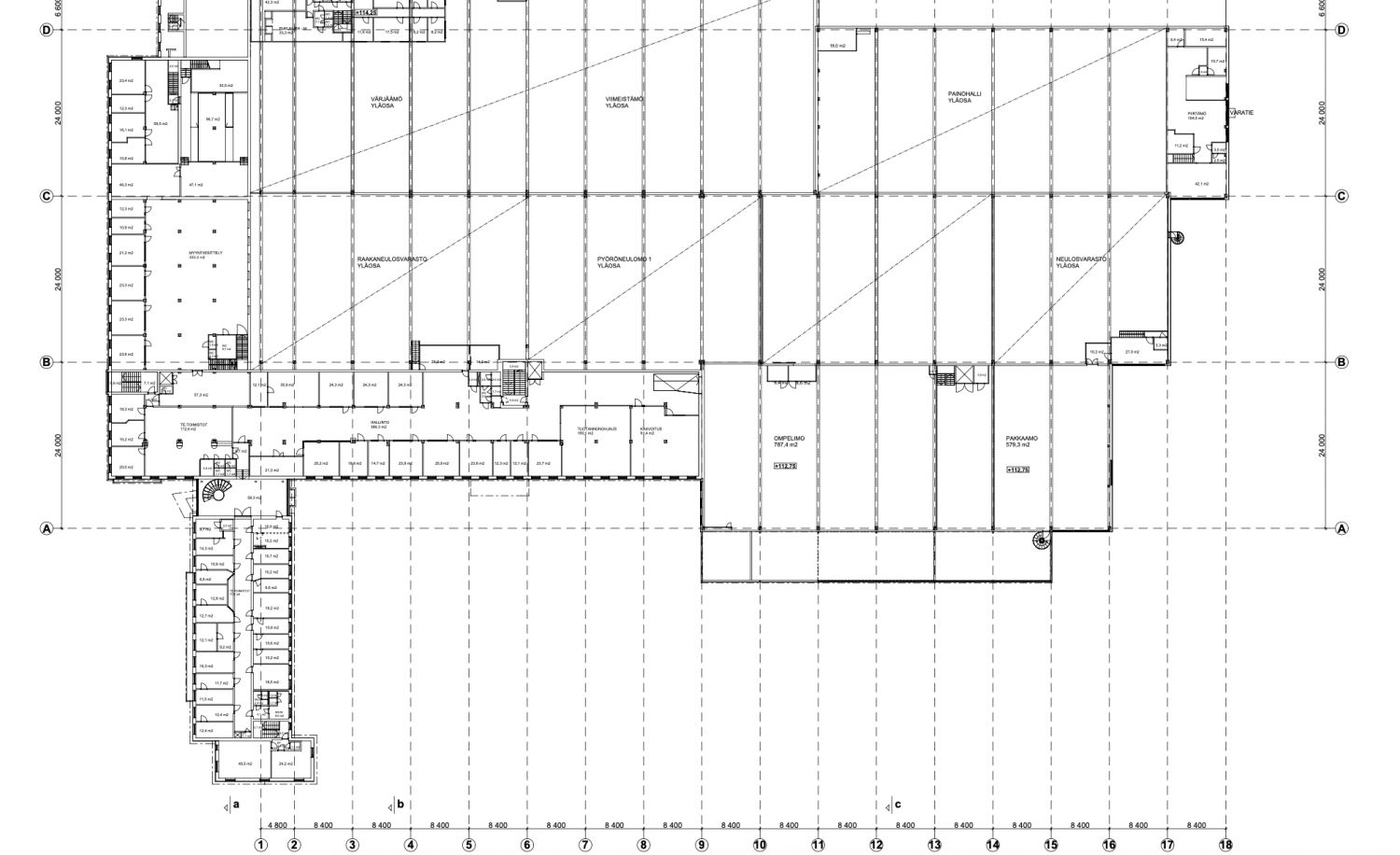
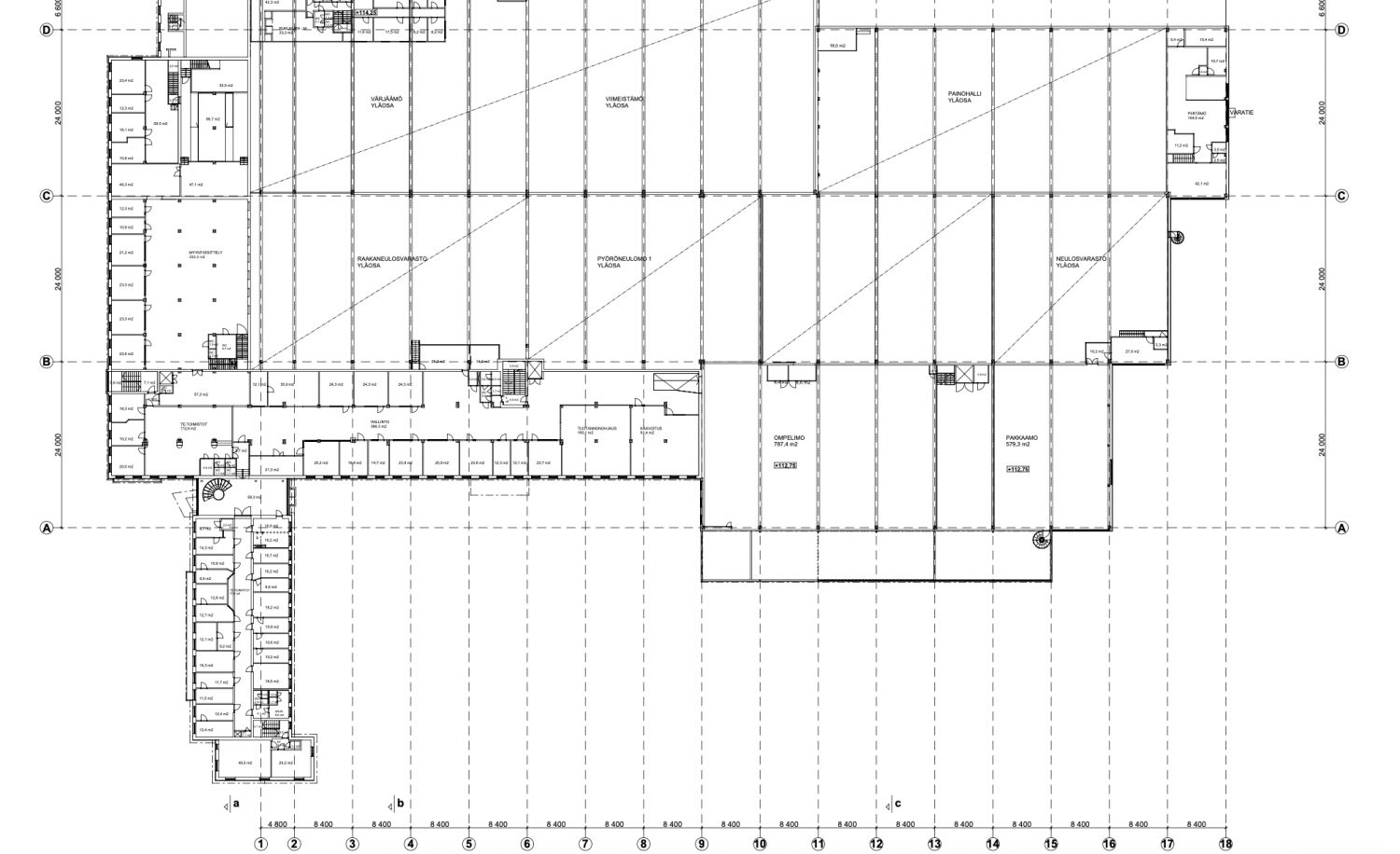
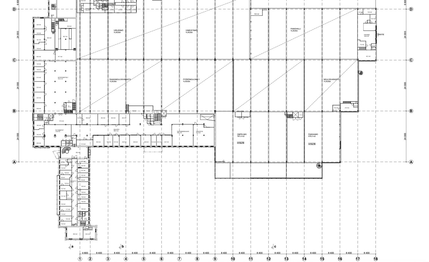
Nokian Nanso-talo etsii uutta elämää!
Toisessa kerroksessa on vapaana n. 100m2 kokoinen toimistotila.
Kiinteistössä toimii mm. suosittu lounasravintola sekä mm. Nokian kaupungin asiakaspalveluyksiköitä sekä liikuntayrittämistä.
Nansotalo on Nanson vanha tehdas, joka on ollut Nanso Group Oy:n tuotantokäytössä vuodesta 1921 vuoteen 2016 asti. Tyylikkääseen tehdasmiljööseen on suunnitteilla tapahtumakeskus, jossa on yritysten toimitiloja, pop up -tapahtumia, musiikki- tai kulttuuritiloja sekä ravintola ja kahvila.
Nansotalo tulee olemaan merkittävä osa Nokian tulevaisuuden keskustaa, sillä se sijaitsee rautatieaseman ja asemanseudun ympärille muodostuvalla alueella. Vain 15 min junamatkan päässä Tampereen keskustasta! Nansotalon kortteliin ja ympäristöön on suunnitteilla myös uusia asuinalueita.
Nansotalo tarjoaa erinomaiset puitteet erilaisille yrityksille. Tarjolla on valmista toimistotilaa, myymälä- ja liiketilaa, tuotantotilaa, varastotilaa ja rouheaa raakatilaa.
Yksityisesittelyt sopimuksen mukaan joustavasti. Tervetuloa!
Toisessa kerroksessa on vapaana n. 100m2 kokoinen toimistotila.
Kiinteistössä toimii mm. suosittu lounasravintola sekä mm. Nokian kaupungin asiakaspalveluyksiköitä sekä liikuntayrittämistä.
Nansotalo on Nanson vanha tehdas, joka on ollut Nanso Group Oy:n tuotantokäytössä vuodesta 1921 vuoteen 2016 asti. Tyylikkääseen tehdasmiljööseen on suunnitteilla tapahtumakeskus, jossa on yritysten toimitiloja, pop up -tapahtumia, musiikki- tai kulttuuritiloja sekä ravintola ja kahvila.
Nansotalo tulee olemaan merkittävä osa Nokian tulevaisuuden keskustaa, sillä se sijaitsee rautatieaseman ja asemanseudun ympärille muodostuvalla alueella. Vain 15 min junamatkan päässä Tampereen keskustasta! Nansotalon kortteliin ja ympäristöön on suunnitteilla myös uusia asuinalueita.
Nansotalo tarjoaa erinomaiset puitteet erilaisille yrityksille. Tarjolla on valmista toimistotilaa, myymälä- ja liiketilaa, tuotantotilaa, varastotilaa ja rouheaa raakatilaa.
Yksityisesittelyt sopimuksen mukaan joustavasti. Tervetuloa!
Vapautuu
Kysy
Kerros
2
Ota yhteyttä
LogisTila Oy
Kauppakatu 14, 33210 TAMPERE
Tuomas Lehtinen
Näytä puhelinnumero
044 491 5961
Pyydä lisätietoa
