Vuokrataan toimistotilat - Jyväskylä
Palokankaantie 18, Seppälänkangas, 40320 Jyväskylä #10729775
Palokankaantie 18
Osoite
Palokankaantie 18, 40320 Jyväskylä
Tilatyyppi
Toimistotilaa
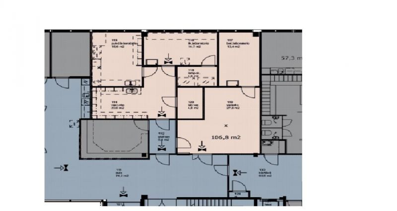
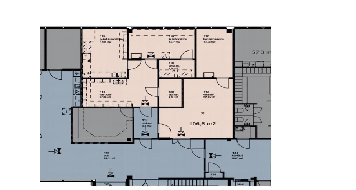
115 m2
Kiinteistö
Vuokrattavana laboratorio- / toimistotilaa Jyväskylästä.
Vapaana valmista laboratoriotilaa modernissa ja erittäin hyvä kuntoisessa kiinteistössä. Vuokrattavat toimitilat sijaitsevat rakennuksen ensimmäisessä, katutason kerroksessa. Vuokrattavana valmis 115,6 m² laboratoriotila. Tila voidaan muuttaa myös toimistotilaksi. Piha-alueella on vapaana 5 autopaikkaa
Kiinteistö ja sijainti
Moderni ja erittäin hyväkuntoinen toimisto- ja hallikiinteistö sijaitsee kasvavalla Seppälänkankaan alueella. Hyvin hoidettu ja toimiva kiinteistö, jonka tontti on kokonaan suljettavissa portein.
Rakennuksessa toimii lisäksi ISS:n Jyväskylän aluetoimisto. ISS:ltä on erillisveloituksilla saatavilla yrityksen vastaanottopalveluita, neuvottelutiloja, postituspalveluita, sosiaalitiloja ym. yrityksen toimintaa tukevia palveluita. Koko rakennus on varustettu kulunvalvonnalla. Jyväskylän keskustaan noin 7 kilometriä.
Vapaana valmista laboratoriotilaa modernissa ja erittäin hyvä kuntoisessa kiinteistössä. Vuokrattavat toimitilat sijaitsevat rakennuksen ensimmäisessä, katutason kerroksessa. Vuokrattavana valmis 115,6 m² laboratoriotila. Tila voidaan muuttaa myös toimistotilaksi. Piha-alueella on vapaana 5 autopaikkaa
Kiinteistö ja sijainti
Moderni ja erittäin hyväkuntoinen toimisto- ja hallikiinteistö sijaitsee kasvavalla Seppälänkankaan alueella. Hyvin hoidettu ja toimiva kiinteistö, jonka tontti on kokonaan suljettavissa portein.
Rakennuksessa toimii lisäksi ISS:n Jyväskylän aluetoimisto. ISS:ltä on erillisveloituksilla saatavilla yrityksen vastaanottopalveluita, neuvottelutiloja, postituspalveluita, sosiaalitiloja ym. yrityksen toimintaa tukevia palveluita. Koko rakennus on varustettu kulunvalvonnalla. Jyväskylän keskustaan noin 7 kilometriä.
Vapautuu
Kysy
Kerros
1.-2. krs
Ota yhteyttä
LogisTila Oy
Rautpohjankatu 10, 40700 Jyväskylä
Kimmo Oravuo
Näytä puhelinnumero
0452644180
Pyydä lisätietoa
