Vuokrataan liiketilat - Turku
Littoistentie 81, 20610 Turku #10729589
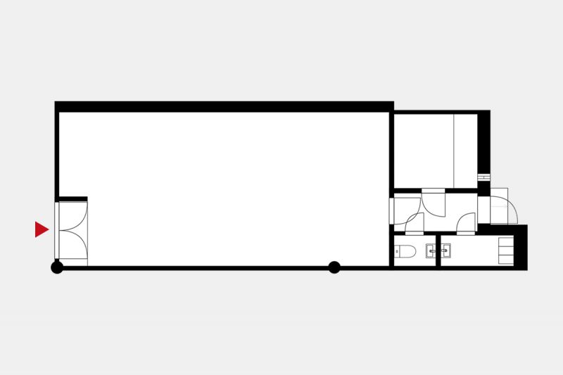
Vuokrattavana siistiä liiketilaa liikekeskuksen pääkäytävältä.
Osoite
Littoistentie 81, 20610 Turku
Tilatyyppi
Liiketilaa
78 m2
Kiinteistö
Vuokrattavana siistiä liiketilaa liikekeskuksen pääkäytävältä. Tilassa on avointa tilaa, wc sekä taustatiloissa varasto ja keittiö (ei ravintolakeittiö). Huoneistossa on takaovi ulkokäytävälle.
Sijainti
Varissuon liikekeskus, Turku
Pysäköinti
Kiinteistön parkkihallissa.
Palvelut
-Lounasravintola
Kulkuyhteydet
-Bussi
-Oma auto
-Oma auto
Vuokralaisia
-K-Supermarket ja
-Tokmanni sekä useita pienempiä toimijoita.
-Tokmanni sekä useita pienempiä toimijoita.
Vapautuu
Heti
Kerros
2
Energiatehokkuusluokka
Ei lain edellyttämää energiatodistusta
Näkyvällä paikalla
Hissi
Lastauslaituri
Ota yhteyttä
REALIUM OY LKV
Tammasaarenkatu 1, 00180 Helsinki
Vaihde:
Näytä puhelinnumero
010 326 346
Tuomo Mäkelä
tuomo.makela@realium.fi
p.
Näytä puhelinnumero
044 050 1158
Joel Keto
joel.keto@realium.fi
p.
Näytä puhelinnumero
045 317 0330
KAIKKI TILAVAIHTOEHDOT KERRALLA!
SOITA - MEILAA JA TILAA NÄYTTÖ!
Ilmainen palvelu tilanhakijoille.
Kartoitamme parhaat tilavaihtoehdot.
Kaikki kohteet eivät ole netissä.
Pyydä lisätietoa
