Vuokrataan toimistotilat - Helsinki
Kaisaniemenkatu 6, Keskusta, 00100 Helsinki #10729501
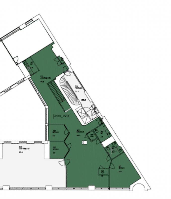
Vuokrataan avara 5. kerroksen toimistotila. Tilassa avotoimistotilaa, muutama erillinen huone, keittiö ja wc-tilat. Hyvä ja keskeinen sijainti Yliopiston metro-aseman vieressä.
Lisätietoja soita 020 730 4530 tai info@repoint.fi. Palvelumme on tilanhakijalle ilmainen.
Osoite
Kaisaniemenkatu 6, 00100 Helsinki
Tilatyyppi
Toimistotilaa
188 m2
Vapautuu
Kysy
Kerros
5
Ota yhteyttä
Repoint Toimitilat Oy
Itälahdenkatu 22 B, 00210 Helsinki
Näytä puhelinnumero
020 730 4530
Lisätietoja soita Näytä puhelinnumero 020 730 4530 tai info@repoint.fi
https://repoint.fi/Pyydä lisätietoa
